Dřevo bylo u nás v minulosti potlačeno dalšími tradičními i novými stavebními materiály jako málo odolné a tudíž nepříliš trvanlivé. „Má však mnoho předností – je lehké, lze s ním proto dobře manipulovat, při dodržení konstrukčních zásad a v určitých případech i díky chemickému ošetření může odolávat povětrnostním vlivům i možným škůdcům dlouhá léta,“ říká Patrik Zamazal, který se věnuje navrhování dřevostaveb.
Spojením zahrad a sadu

Samostatně stojící nepodsklepený rodinný dům, který chceme dnes představit, nabízí svým majitelům útulnost domova, vzdušnost a komfort velké stavby a v neposlední řadě i v současnosti stále důležitější úspornost provozu. Pozemek ve smíšené vilové zástavbě vznikl spojením původně několika samostatných zahrad a sadu.
Zadáním pro architekty Patrika Zamazala a Jana Světlíka bylo navrhnout přízemní dům pro početnou rodinu s bohatým společenským životem. Základním požadavkem byl velký obytný prostor a samostatné ložnice pro rodiče a pro každé dítě, součástí domu měl být i bazén, samozřejmostí pak propojení interiéru s exteriérem. Než investor návrh schválil, vzniklo množství různých variant, výchozím bodem byla ovšem vždy prostorově velkorysá jednopodlažní dřevostavba.
V jednoduchosti je síla
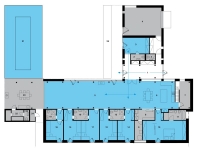
Stavba má jednoduchý půdorys ve tvaru písmene L a nabízí mnohočetné a různorodé vnitřní i vnější prostory. Vstupní hala se nachází v kratším příčném rameni, z ní lze vstoupit do hostinského pokoje s vlastním hygienickým zázemím, je zde umístěna i samostatná toaleta. S hostinským pokojem sousedí přístřešek pro automobily. Centrum domu představuje společný obytný prostor v podélném křídle, zahrnující kromě obývacího pokoje také kuchyni s jídelnou. Prostřednictvím prosklené stěny je tato rozměrem velkorysá a současně útulná místnost opticky propojena s jižní částí zahrady. Prostor před terasou je oživen jezírkem, které svým geometrickým tvarem koresponduje s prostorovou koncepcí domu.
Ze společné části se vchází do ložnic dětí, z nichž každá má samostatný vstup na zahradu, a do ložnice rodičů s koupelnou a šatnou. V tomto křídle je dále umístěna také technická místnost pro domácí práce a technologii domu a sklad. Prostor v mezipatře je využit jako pracovna.
Na podélnou loď navazuje krytá terasa s venkovní kuchyní, saunou a bazénem. Majitelé si původně představovali krytý vnitřní bazén se samostatným vchodem do zahrady, vzhledem ke komplikovanosti technického provedení takového bazénu však byla tato varianta vyloučena a rodina souhlasila s vnějším bazénem s vyhřívanou vodou. Díky tepelnému čerpadlu je provoz hospodárný, při topení v krbu s výměníkem tepla je přebytečné teplo využito také k ohřevu této vody. V bazénu se tedy dá koupat i za chladnějšího počasí.
Slovo architekta |
|
Renzo Piano v televizní talkshow Charlie Rose na otázku „Co je potřeba pro vynikající architekturu?“ říká, že samozřejmě je potřeba dobrý architekt, ale že ještě mnohem důležitější je dobrý klient, bez něho by dobrá stavba nikdy nevznikla. Nakolik jsme při práci na tomto domě byli dobrými architekty, neumíme nezaujatě hodnotit. Nicméně můžeme s odstupem říct, že klient nám byl sice náročným, ale opravdu velmi dobrým partnerem, a dům se v mnoha ohledech povedl právě díky němu. Děkujeme. |
Symbióza dřeva a kovu

Přestože investor netrval na nízkoenergetické stavbě, požadavky na nízkoenergetický dům jsou v zásadě splněny. Jako i v případě dalších domů architekta Patrika Zamazala je zde použito řízené větrání s rekuperační jednotkou, velký obytný prostor vyhřívá podlahové topení, samostatné místnosti radiátory. Dům je postaven systémem two by four v kombinaci s pohledovou trámovou konstrukcí, která podtrhuje velkorysé působení centrální místnosti. Fasádu tvoří neobvyklá kombinace přírodního modřínu a cortenového plechu ve výrazných zemitých odstínech. Předností obou materiálů je schopnost stárnout a vyzrávat. Přírodní vzhled domu zdůrazňuje jednoplášťová vyspárovaná plochá střecha se zatravněným povrchem, jako hydroizolace je zde použita nepropustná kaučuková membrána.
|
Technické údaje
|
|
|
Zastavěná plocha |
480 m2 |
|
Užitná plocha |
cca 400 m2 |
|
Konstrukce |
betonové základové pasy, dřevostavba montovaná systémem two by four, dřevěný krov, zelená střecha |
|
Výplně otvorů |
okna dřevěná euro, kombinace pevného zasklení a otevíratelných částí, dveře dýhované hladké do obložkových zárubní |
|
Vytápění |
ústřední, podlahové vytápění + radiátory, zdroj energie tepelné čerpadlo, řízené větrání rekuperací vzduchu, krb s krbovou vložkou |
|
Podlahy |
v obytných místnostech nášlapná vrstva z dřevěných podlahových vlysů, v koupelnách kaučuková podlahová krytina Nora |
|
Cena |
u tohoto typu staveb je cca 6 000 Kč/m3 |
|
Tepelná ztráta objektu je 10 kW. Dům má parametry nízkoenergetického domu. |
|
Autoři návrhu
MgA. Patrik Zamazal (1973)
Autorizovaný architekt. Vystudoval nábytkářství na střední uměleckoprůmyslové škole a architekturu na VŠUP v Praze, od r. 2000 se zabývá samostatnou architektonickou a projekční činností. Zaměřuje se na úspory energie ve stavebnictví, navrhování a realizaci dřevostaveb, věnuje se publikační a osvětové činnosti.
V r. 2008 založil architektonickou kancelář Molo architekti.
Spoluautor
MgA. Jan Světlík
Kontakt
Molo architekti, s. r. o., Chrudimská 6, Praha 3, tel.: 775 771 422
