|
Na svažitém pozemku o velikosti 21 x 78 metrů, orientovaném užší stranou k jihu, stála původně jen malá chata a za ní už se cesta ztrácela v lese. Opuštěné místo jako stvořené k rekreaci, trvalé bydlení si tu ale většina lidí z města těžko dokáže představit. „Místo jsme si vybrali proto, že tu cítíme velkou pozitivní energii a harmonii, která nám v každodenním spěchu tolik chybí,“ přivítala nás paní domu, která se spolu s manželem věnuje přírodním filozofiím.
|
Tři funkce, tři podlaží„Rodina si přála vnímat přítomnost lesa v celém domě. Výhledy do okolí, především jižním směrem, byly proto jedním z určujících faktorů,“ vysvětluje architekt Zdeněk Jiran, jeden ze spoluautorů návrhu. „Dále si klienti přáli vytvořit tři oddělené zóny – pro společenský život, hlavní obytnou část a klidovou ložnicovou část. Jsou uspořádány vertikálně a propojeny schodištěm.“
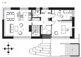
První podlaží, z poloviny zapuštěné do terénu, tvoří velká společenská místnost s krbem, malé nahrávací studio, sociální a technické zázemí. Společenskou místnost lze díky shrnovací prosklené stěně zcela otevřít a propojit s přírodou. Druhé podlaží je vstupní, zahrnuje obývací pokoj s kuchyní, malou koupelnu, pracovnu a pokoj pro hosta. Ložnice ve třetím podlaží jsou vybaveny šatnou, koupelnou a dvěma terasami. Děti využívají slunnou terasu na jižní straně, ložnice rodičů se obrací na stinný a nerušený sever.
|
SLOVO AUTORŮNa této práci nás nejvíce zaujala touha moderně žijícího klienta bydlet téměř na samotě, na parcele v lese. Jedním z výsledků tohoto spojení protikladů je i použití dvou na sebe navazujících konstrukčních systémů. Spodní části stavby, první podlaží a severní část druhého podlaží jsou částečně zapuštěny do terénu a jsou z betonu a cihel, ostatní části jsou nad terénem a mají dřevěnou konstrukci. |
|
Ekologie a feng-šuejJak dispoziční, tak konstrukční řešení odrážejí zásady staré východní filozofie feng-šuej. Dům byl naplánován přesně na dané místo, vnitřní prostory jsou uspořádány podle světových stran a jejich propojení umožňuje volné proudění energií. Architekti vybrali materiály z domácích zdrojů, vyzařující místní energii (smrkové a javorové dřevo, modřín, pískovec). Vysoce trvanlivé, ale drahé tropické dřevo dobře nahradí i náš modřín.
Přírodu ctí i snaha o ekologický provoz domácnosti, zejména úsporné vytápění, podmíněné nadstandardní tepelnou izolací obvodového pláště a střechy. Na jaře a na podzim se dům vytápí krbem, který se nachází ve společenské místnosti v přízemí a dodává teplo horkovzdušným rozvodem do vyšších podlaží. V obývacím pokoji o patro výše stojí druhý krb, napojený na teplovodní rozvod ústředního vytápění. Za mrazivého počasí se jako zdroj energie využívá kotel na dřevo s elektrodohřevem. |
|
Ideál versus realitaNávrh domu prošel několika fázemi, od kompozice s rovnou střechou, složené ze dvou horizontálních hranolových hmot, až po obdélníkový dům s podkrovím. „Předepsaná regulace Chráněné krajinné oblasti Český kras vyžadovala, aby stavba nesla znaky selského stavení – sedlovou střechu, dělená okna atd. Tyto znaky však podle našeho názoru dnes představují jen formální vnější obálku, která příliš neodpovídá životnímu stylu a funkční náplni moderního domu,“ pokračuje architekt Jiran. „Dospěli jsme ke kompromisu se sedlovou střechou, ale současným architektonickým výrazem.“ „V některých případech jsme z finančních důvodů použili jiné druhy dřeva a kamene než v návrhu, dosud jsme například nerealizovali přístavek na dřevo a některé další věci. V domě prostoupeném vůní lesa se nám ale bydlí pohodlně a příjemně,“ rozloučila se s námi paní domu. |
TECHNICKÉ ÚDAJE
Zastavěná plocha: 155 m² |
|
|
AUTOŘIIng. arch. Zdeněk Jiran (1959)
Autorizovaný architekt. Vystudoval Fakultu architektury VUT Brno. V letech 1995–2005 působil jako vedoucí ateliéru volné tvorby FA ČVUT Praha, je členem vědecko-umělecké rady Fakulty architektury ČVUT. Od roku 1995 vede společně s Michalem Kohoutem ateliér Jiran Kohout Architekti (JKA), který získal řadu ocenění za realizace svých projektů i v architektonických soutěžích.
Ing. arch. Ph.D. David Tichý (1969)
Vystudoval Fakultu architektury ČVUT v Praze. Na téže škole absolvoval v roce 2006 doktorandské studium teorie architektury. V posledních sedmi letech úzce spolupracuje s firmou Jiran Kohout architekti.
|
PŮDORYSY
|
|
|
Kontakt: |





