|
Tento sen se splnil mladé rodině z jižních Čech, která se do svého nového domova přestěhovala po 12 měsících od započetí stavby. Pro výstavbu zvolila rovinatý pozemek v nové zástavbě poblíž bývalého okresního města a na základě doporučení oslovila píseckou stavební společnost STAVINVEST Q, která jí nabídla k výstavbě typové domy společnosti G SERVIS CZ. Z katalogu domů ji nejvíce oslovil právě dům Pluto Plus, jehož tradiční vzhled a čisté linie ho předurčují pro široké využití, neboť na rozdíl od mnoha importovaných typů nepůsobí v české krajině rušivě. S jeho schvalováním v rámci územního plánu jistě nebudou mít ani další potenciální stavebníci problém. |
Jisté snyS vizí budoucího domova šla ruku v ruce jistota realizace stavby a její kvality. Obě stavební firmy totiž spolupracují v rámci partnerství v programu POROTHERM DŮM Wienerberger. Pokud investoři uzavřou smlouvu o dílo s některou z partnerských firem tohoto programu, je dokončená stavba zkontrolována odborníky nezávislých společností CSi nebo TZÚS, na základě jejichž posudku dostane certifikát kvality. Navíc smlouvou investoři získají i garanci, vztahující se na případnou likvidaci či konkurs firmy provádějící stavební práce.
|
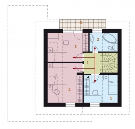
Pluto je z POROTHERMUPluto Plus je kompletně vystavěn systémem POROTHERM, má klasický dřevěný krov a sedlovou střechu se sklonem 40°. Z boční strany domu je navržena garáž, pro níž se rozhodli i dnešní investoři. Dům patří k velikostně menším typům a tříčlenné rodině rozměrově plně vyhovuje. Poslouží však i vícečlenné domácnosti s běžným provozem. Ze zádveří se vstupuje do prostorného obývacího pokoje a dále do samostatné kuchyně, oddělené příčkou. To jistě ocení všichni, kdo neradi ukazují své provozní zázemí nebo nechtějí být kuchyňským provozem rušeni při relaxaci. Nicméně díky absenci dveří jsou obě místnosti částečně vizuálně propojeny a členové domácnosti tak zůstávají v kontaktu. V rohu pokoje, vedle kuchyně, stoupá schodiště do soukromé zóny v podkroví, čítající tři pokoje a koupelnu. Z jednoho z pokojů je přístup na balkon ve štítu. Co majitelé v rámci řešení dispozic interiéru také velmi oceňují, jsou již předem naprojektované vestavné skříně, pro které byly v podkroví vyzděny niky. |
|
|
TECHNICKÉ ÚDAJEZastavěná plocha: 90,5 m² |
Ještě více po svémMladá rodina si přála dům více přizpůsobit osobním potřebám, což nepředstavuje u dnešních typových domů nic neuskutečnitelného. Jedinými zásahy do vnější konstrukce bylo protažení střechy nad balkónem, které oceňuje paní domu – může zde sušit prádlo i za nepříznivého počasí, a také druhý výlez na střechu. Více dílčích změn se odehrálo v interiéru, například v kuchyni nebyla vystavěna plánovaná spíž, čímž se nevelký kuchyňský prostor zvětšil o více než 1 m¹. Do technické místnosti v přízemí přibyl praktický sprchový kout a nad obytným podkrovím byl vytvořen neméně užitečný úložný půdní prostor. |
|
|
PŮDORYSY
Kontakt:
POROTHERM dům Wienerberger Plachého 388/28, České Budějovice tel.: 383 826 301, 383 826 111, fax: 383 826 115
STAVINVEST Q, s. r. o. Budějovická 255, Písek, tel.: 382 502 510,
G SERVIS CZ, s. r. o. Argentinská 38, Praha 7-Holešovice tel.: 220 874 740, |




