Některé sny si na své naplnění musí počkat. První inspirace přišla před několika lety, když se manželská dvojice rozhodla stavět. Když se nyní ke svému snu vrátili, věděli přesně, co chtějí. Výsledkem je moderní patrová dřevostavba na západ od Prahy, navržená na míru jejich současnému životnímu stylu.
Na počátku byla touha po komfortním zdravém bydlení v hezkém prostředí. Oslovila je nabídka společnosti Lucern, se stavbou rodinného domu ale neměli žádné zkušenosti. Jejich prvotní obavy rychle rozptýlily moderní realizace i návštěva vzorového domu. „Přestože jsme zvažovali více dodavatelů, pokaždé jsme se vraceli k tomu, který nás oslovil už na začátku – nejen vzhledem domů, ale i přístupem a použitými technologiemi,“ vzpomínají manželé.
Výběr pozemku také nebyl jednoduchý. První příležitost nevyšla, což se zpětně ukázalo jako štěstí. Druhý pozemek v klidné obci západně od Prahy našli během covidu – rozhodování probíhalo převážně online a velmi rychle. Přestože se k samotné parcele zpočátku ani nedalo dostat, okolní krajina i atmosféra místa je okamžitě přesvědčily.



Od bungalovu k patrovému domu
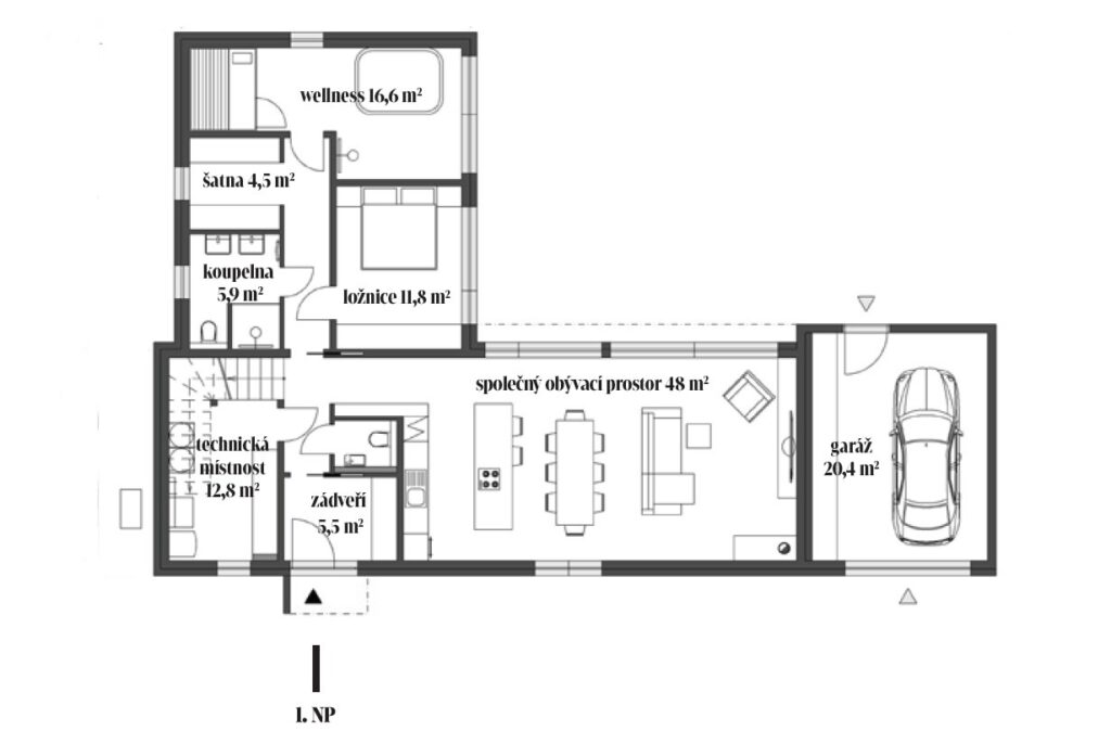
Podmínky pozemku změnily původní plán na bungalov, a tak se manželé rozhodli pro individuální návrh patrového domu. Výsledkem je dřevostavba ve tvaru L, otevřená do jižně orientované zahrady.
Vstup je umístěn v rohové části, za zádveřím se dispozice rozděluje – přímo se vchází do uzavřené ložnicové části s komfortní ložnicí, šatnou, koupelnou a relaxační zónou (nechybí sauna). Napravo je rozlehlý společný obývací prostor se sezením, kuchyní a jídelnou. Střední část domu má dvě podlaží, nahoře se nachází další pohodlná ložnice s vlastní koupelnou, naprostým soukromím a panoramatickým výhledem.



Slovo majitelů: Stavba na klíč probíhala hladce a rychle, přesně podle harmonogramu, přestože jsme se nevyhnuli drobným úpravám projektu. Výsledkem je moderní, energeticky úsporný dům s příjemným vnitřním klimatem. Na nový domov jsme si zvykli tak rychle, že se nám ani nechce jezdit jinam.
Bydlení otevřené do přírody
Do interiéru majitelé zvolili hřejivý, ale moderní přírodní styl. Převládají odstíny šedé, bílé, dřeva a kamene. Jejich nejoblíbenějším místem se nakonec stala rohová terasa, kam se dá vyjít ze všech obytných místností v přízemí včetně relaxační zóny. Dřevěné podlahy bezbariérově přecházejí v dřevěnou palubu a dál v upravenou zahradu s rekreačním trávníkem a řadou půvabných zákoutí.

Technické údaje:
- Zastavěná plocha: 172,75 m2
- Užitná plocha: 171,4 m2
- Dispozice: 5 + kk + garáž
- Lokalita: střední Čechy
- Návrh a dodavatel: LUCERN moderní dřevostavby, www.lucern.cz
- Konstrukce: nízkoenergetická dřevostavba na betonové základové desce, plochá jednoplášťová střecha, okna hliníková s izolačními trojskly, předokenní žaluzie na el. pohon
- Technologie: podlahové vytápění, tepelné čerpadlo voda–vzduch (dodavatel IVT), řízené větrání s rekuperací ZEHNDER
- Cena: cca 10 milionů Kč (bez vybavení interiéru)


