Mladý pár si přál především komfortní moderní bydlení a dřevostavby jej oslovily svým přírodním charakterem i výbornými energetickými vlastnostmi. Přestože na našem trhu „soupeří“ stovky projektů katalogových domů, žádný si nevybrali, každému něco scházelo nebo nebyl vhodný na mírně svažitý pozemek v hezkém prostředí na kraji obce. Proto se rozhodli nechat si postavit dům přesně na míru.

Z dodavatelů je nejvíce oslovila nabídka společnosti LUCERN dřevostavby, která poskytuje komplexní služby od návrhu až po realizaci na klíč.
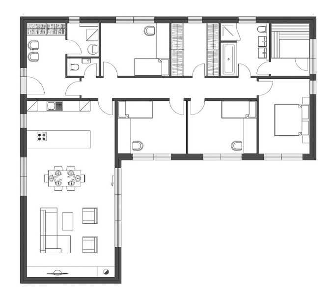
Dům byl do detailů navržen podle požadavků investorů. Základem je bezbariérová dispozice ve tvaru písmena L, kde jsou všechny obytné místnosti orientovány na chráněnou terasu. Dispozice je přehledně rozdělena na denní, obývací část a ložnicovou zónu (dva dětské pokoje, pracovna a zázemí). Vstup vede ze zádveří umístěného vedle společné obývací části, dále na něj navazuje dlouhá chodba, ze které se vchází do všech ostatních pokojů, šatny, koupelny a toalety. Za koupelnou je „schovaná“ sauna, kde si majitelé hlavně v zimě dopřávají zasloužený relax. Dominantou domu je obývací pokoj spojený s kuchyní. Tento prostor opticky zvětšuje a prosvětluje otevření do krovu. Velkým HS portálem je propojen přímo s terasou se sezením, po několika schůdcích se odtud dá sejít do zahrady.

V domě je rozvedeno teplovodní podlahové vytápění, které umí v létě dům i přichlazovat, energii zajišťuje tepelné čerpadlo IVT systém vzduch/voda.
Jednouchý design citlivě propojuje tradice venkovské zástavby s moderní architekturou. Najdeme tu jak sedlovou, tak plochou střechu, velké prosklené plochy, hladké omítky i dřevěný obklad. Dům bude dobře sloužit i hezky vypadat desítky let.

TECHNICKÉ ÚDAJE
Zastavěná plocha: 151,24 m2
Užitná plocha: 177,6 m2
Dispozice: 5 + kk
Konstrukce: betonová základová deska, montovaná sendvičová dřevostavba, dřevěný krov + plochá střecha, okna a HS portály – hliníková s izolačními trojskly, předokenní žaluzie na el. pohon
Technologie: podlahové teplovodní vytápění, zdroj tepelné čerpadlo, IVT systém vzduch/ voda
Dodavatel: LUCERN dřevostavby, www.lucern.cz
Text: Redakce / Foto: Lucern
