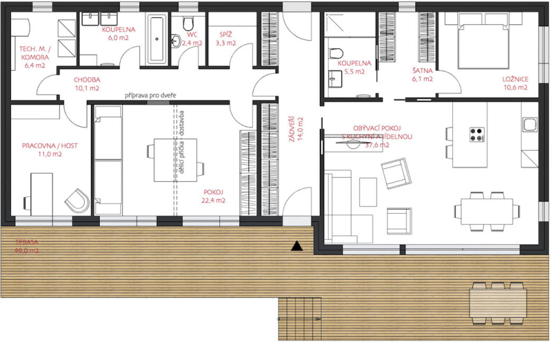
Alfou a omegou architektonického návrhu byl krásný slunný pozemek v mírném svahu s výhledem na celé kutnohorsko. Nabízel přímo ideální podmínky pro realizaci jednopodlažní pasivní dřevostavby. Je umístěna v horní části parcely, odkud také vede příjezdová komunikace a přístup na pozemek. Automobil parkuje v krytém stání mimo vlastní dům.

Obdélníková dispozice je orientována po vrstevnici a uspořádána tak, že téměř všechny obytné místnosti mají po celý den slunce a hezký výhled. Hlavní vstup rozděluje dům na dvě části: po levé straně se nachází obývací pokoj s kuchyňským koutem a jídelnou. Tento prostor je krásně světlý hlavně díky spoustě velkých oken, ze kterých se vchází na terasu a následně do zahrady. Přímo z obývacího pokoje se posuvnými dveřmi vstupuje do tzv. rodičovského bloku, který tvoří ložnice, šatna a koupelna rodičů. „toto uspořádání, kde rodiče mají oddělené soukromí, je u stavebníků velmi oblíbené, navrhujeme jej často a velmi se osvědčilo,“ říká lukáš Černík, jednatel společnosti Lucern dřevostavby.
Na vstup na pravé straně navazuje dlouhá chodba, která protíná celý dům a je ozvláštněna tapetou s dekorem stromů. V této části domu je velký dětský pokoj, který se do budoucna bude rozdělovat na dva dětské pokoje, až děti vyrostou a budou vyžadovat soukromí. Dispozičně a stavebně se s tím počítalo již v rámci projektu. Nechybí zde ani druhá koupelna a WC, pokoj pro hosty, spíž a technická místnost. Prostory zázemí jsou v duchu zásad výstavby nízkoenergetických domů orientovány na sever, aby neubíraly slunce a ani výhled.

Interiér si majitelé domu vybavili sami: převažuje přírodní dřevo, dřevodekor a neutrální barevný základ – kombinace šedé a bílé. Účelný moderní nábytek doplnili barevnými doplňky. Základní neutrální barvy a dřevěný obklad se uplatnily také na fasádě, takže se podařilo harmonicky propojit interiér s exteriérem.
Dům s užitnou plochou 134 metrů čtverečních a velkou terasou poskytuje rodině veškerý potřebný komfort. Příjemné bydlení obklopuje krásná zahrada, o kterou se s láskou starají.

TECHNICKÉ ÚDAJE
Dispozice: 5 + kk + terasa a kryté stání + sklad
Zastavěná plocha: 160 m2
Užitná plocha: 134 m2
Konstrukce: betonová základová deska, sendvičová dřevostavba, plochá střecha, hliníková okna s izolačními trojskly
Technologie: zdroj energie tepelné čerpadlo IVT, teplovodní podlahové vytápění REHAU
Dodavatel: LUCERN dřevostavby, www.lucern.cz

TEXT: REDAKCE / FOTO: LUCERN
