|
|
JENDA
Věk: 46 let Vzdělání: středoškolské Povolání: technik Zájmy, koníčky: Létání – chtěl bych k domu udělat přistávací plochu pro vrtulník. Také zahradničení – chci zachovat a rozšířit okrasnou zahradu, kde bude bezpečný výběh pro malou dceru spojený s klidným odpočinkem v zeleni. Současné bydlení: rodinný domek v Chrudimi |
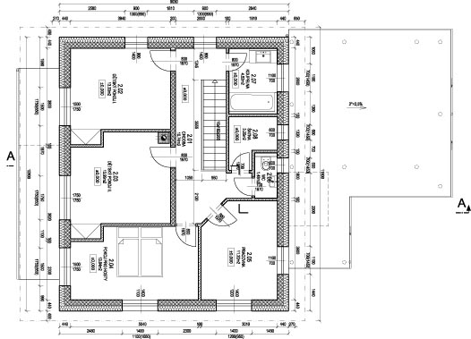
Jendova zpověď 2.Jaký typ rodinného domu sis vybral? Jak bude velký? Máte nějaké zvláštní požadavky? Původně navržená zimní zahrada přistavěná k západní straně byla sice schválena, ale již v samotném začátku stavby opět zrušena pro velkou finanční náročnost. Nahradíme ji pergolou o stejných rozměrech. Ptejte se Jendy!Zaujalo vás rozhodnutí Jendy postavit si vlastní rodinný dům? Pokud byste se chtěli od Jendy dozvědět informace, na které jsme ve zpovědi zapomněli, vložte svůj dotaz do diskuzního fóra – téma REALITY SHOW. Jenda vám jistě rád odpoví. Jak velká bude zahrada? Co plánuješ, že na ní bude? |
|
Stavíš svépomocí, nebo na klíč? Kdo vypracoval projekt? Stavíme kombinovaně. Něco zhotovily firmy vzešlé z mnohých výběrových řízení a doporučení, zbytek děláme svépomocí. Návrh jsme s manželkou několikrát předělali a pak dali projektantovi k posouzení a překreslení do konečné podoby. (Pokračování příště) |
NÁŠ TIP
ZÍSKEJTE ČASOPIS RODINNÝ DŮM ZDARMA NA CELÝ ROK! Jenda získal za svoji účast v Reality show na www.dumabyt.cz předplatné časopisu Rodinný dům na celý rok. Pokud právě stavíte nebo rekonstruujete dům a chtěli byste se také zúčastnit Reality show, napište nám do redakce (KONTAKT) . Podělíte se o své zkušenosti s ostatními čtenáři a získáte od nás dárek. |



