Studio rozkročené mezi Prahou a slovenským lučencem, které tvoří trochu netypicky matka a syn, dostalo zadání vytvořit byt ve vysokém standardu s nádechem industriálního stylu. Původním záměrem bylo byt pronajímat, po realizaci byl ale majitel s výsledným designem natolik spokojený, že se rozhodl jej trvale obývat i se svou rodinou.
V novostavbě byl připraven holý byt, tedy bez podlah, dveří a povrchových úprav. Zato byl již rozčleněn do jednotlivých pokojů, dispoziční řešení ale nebylo nejšťastnější. Ke spolupráci tak majitel už v rané fázi přizval studio Seči, se kterým se potkal již dříve, kdy pro něj architekti navrhovali design kavárny ve slovenském lučenci.
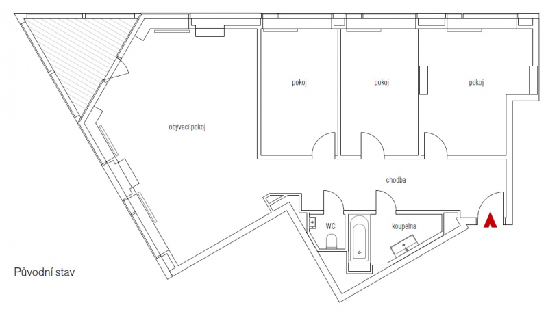
Kvůli příliš široké chodbě a malé koupelně působil byt stísněným dojmem, navíc nepočítal s dostatkem úložných prostor. Přání majitele přitom byla opačná: cílem bylo mít obytný prostor, dostatek úložných prostor a větší koupelnu s vanou i sprchovým koutem.
Studio se tak rozhodlo po konzultaci s klientem většinu příček odstranit. obytný prostor architekti propojili s kuchyní a ostrůvkem, dále vytvořili samostatnou ložnici a samostatný pokoj pro teenagera. Jednu z příček mezi pokoji nahradili oboustrannou vestavěnou skříní, což pomohlo vyřešit problém s nedostatkem úložných prostor.

Velkou koupelnu pak oddělili od úzké chodby celoskleněnou příčkou. Co zní napoprvé velmi neprakticky, designéři ze studia Seči vyřešili malým technologickým fíglem – na skleněnou stěnu aplikovali inteligentní fólii, která se dá pomocí tekutých krystalů zneprůhlednit. Zmáčknutím tlačítka na ovladači se sklo stane neprůhledným a z otevřené koupelny se stává soukromý prostor.
Už jste viděli? VIDEO: Bydlení dotažené do posledního detailu
Navíc díky příčce získali majitelé pro pračku a sušičku samostatnou místnost. „Díky změně dispozice získal byt na vzdušnosti a reálně tak klient může bydlet dle logických potřeb – potkávat se s návštěvami, být s rodinou při vaření i trávit čas v soukromí,“ nastiňuje důvody dispozičních úprav architekt Jakub Seči.


Interiér s krásným výhledem na celou Bratislavu dýchá příjemnou atmosférou. Jednotný rukopis dodává bytu betonová podlaha, důraz na detaily, funkčnost a design s nábytkem na míru. Bytu vévodí kombinace šedé a bílé barvy, cihlový obklad a sklo. Industriálnímu charakteru dodávají teplý a útulný nádech dřevěné části z dubu.
| Technické údaje: |
| Užitná plocha bytu: 100 m2 Dveře: Eclisse Svítidla: Foscarini Architektonický návrh: Ing. arch Jakub Seči, Andrea Sečiová, Studio Seči Kontakt: Jakub Seči, +420 777 970 623, seci.archi |
Jak na to: Samozatmavovací příčka
Montážně je samozatmavovací příčka jednoduché řešení. Existují dvě možnosti: použití inteligentního skla (zatmavovací fólie je vložená ve výrobě mezi sklo), nebo lze na sklo dodatečně nalepit inteligentní fólii. Je to relativně hi-tech řešení, čemuž odpovídá i finanční stránka (12–15 000 Kč/m2), ale vývoj jde rychle dopředu a s tím klesá i cena. Příčka má stejné akustické vlastnosti jako běžná bezrámová prosklená příčka s jednosklem (vzduchová neprůzvučnost kolem 37 dB dle použitého skla).
