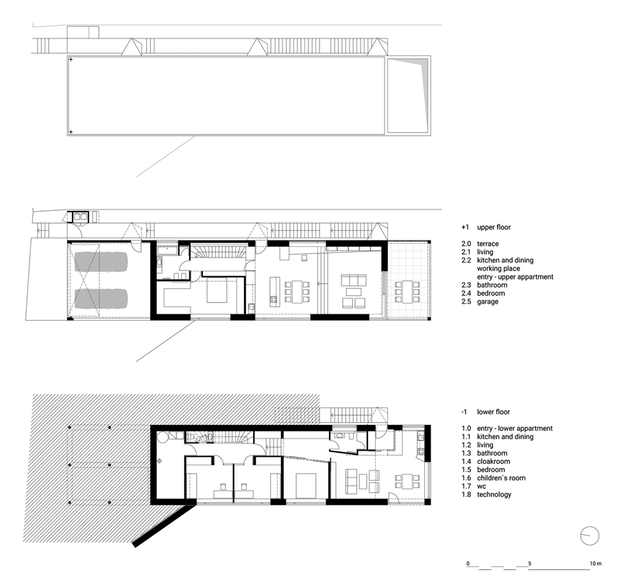
Horné podlažie je vstupné, nadväzuje na garáž a nachádza sa tu väčší byt (pre rodičov) s terasou. Spodný menší byt (pre prarodičov) má výstup na záhradu a je prístupný po vonkajšom schodisku. Izby detí situovali medzi oba byty na úrovni spodného podlažia. Konštrukcia je železobetónová monolitická, časť garáže stojí na mikropilótach. Návrh domu nesebecky zachoval priehľad na protiľahlý les pre susedné domy.
- Zastavaná plocha: 190 m²
- Úžitková plocha: 212 m²
- Obostavaný priestor: 1 300 m³
Autori: Pavel Martinka, Ondřej Spusta – architekti zo štúdia MASPARTI

