Na konci minulého roku architekti společnosti Lucern moderní dřevostavby představili dva nové typové domy, které vznikly na základě úspěšného modelu Lucern 133. Naslouchali přáním klientů, analyzovali jejich zkušenosti z realizací a promítli konkrétní požadavky do nové, ještě propracovanější generace domů.
Lucern 124 a Lucern 143 staví na osvědčeném konceptu jednoduchého bungalovu se sedlovou střechou, ale přinášejí vyšší komfort, lepší zónování interiéru i modernější práci s prostorem.
Architektura obou domů je čistá a nadčasová. Jednoduchá hmota se sedlovou střechou bez přesahů působí elegantně a přirozeně zapadne jak do nové zástavby, tak do venkovského prostředí. Světlá fasáda v kombinaci s velkoformátovými prosklenými plochami a dřevěnými prvky vytváří harmonický a moderní celek. Směrem do zahrady se otevírají velká francouzská okna, která propojují interiér s terasou a přinášejí dostatek denního světla.

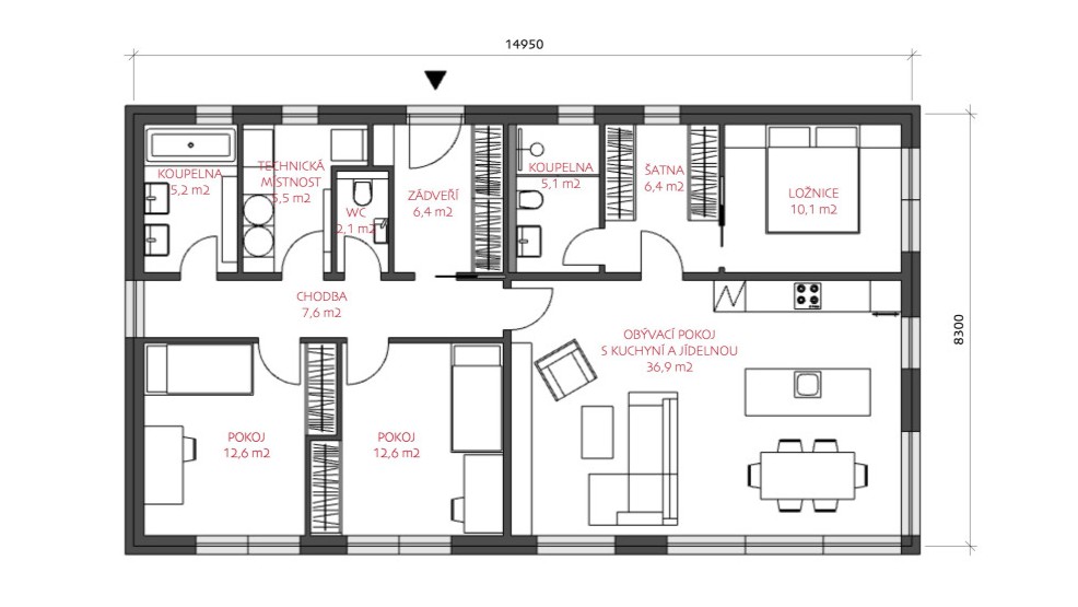
Lucern 124 – Kompaktní dům s promyšleným komfortem
Tento dům je ideální volbou pro rodinu, která hledá praktické řešení s efektivně využitou dispozicí a bez zbytečných metrů navíc. Dominantou domu je otevřený obývací prostor s kuchyní a jídelnou o velikosti 36,9 m². Velké prosklení směrem na terasu zajišťuje přirozené propojení interiéru se zahradou a vytváří vzdušnou, světlou atmosféru hlavní obytné části.
Dům je jasně rozdělen na společenskou a klidovou zónu, což zajišťuje dostatek soukromí pro všechny členy rodiny. Díky kompaktním rozměrům je vhodný i pro menší pozemky a zároveň nabízí plnohodnotné rodinné bydlení.
Ve standardním provedení dům stojí 5 555 000 Kč.
Dispozice nabízí:
- společný obývací prostor s kuchyňským koutem,
- dva dětské pokoje (12,6 m²),
- ložnici s vlastní šatnou,
- dvě koupelny,
- samostatné WC,
- technickou místnost,
- zádveří a centrální chodbu s úložnými prostory.


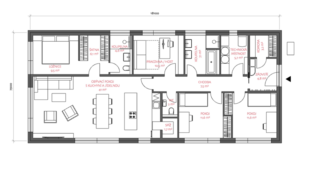
Lucern 143 – Velkorysý prostor pro moderní životní styl
Koncept vychází ze stejné architektonické linie, ale reaguje na požadavek větší obytné plochy a vyšší variability. Srdcem domu je otevřený obývací pokoj s kuchyní a jídelnou o velikosti 41 m². Kuchyň je doplněna samostatnou spíží, která zvyšuje komfort každodenního fungování domácnosti. Prosklená stěna směrem do zahrady zajišťuje dostatek světla a plynulé propojení s terasou.
Pracovna je odpovědí na časté přání klientů – umožňuje pohodlnou práci z domova nebo flexibilní využití jako pokoj pro hosty. Lucern 143 tak nabízí větší variabilitu a dlouhodobou přizpůsobitelnost měnícím se potřebám rodiny.
Cena domu ve standardním provedení je 6 140 000 Kč.
Dispozice nabízí:
- společný obývací prostor s kuchyňským ostrůvkem,
- spíž s přístupem z kuchyně,
- ložnici s vlastní šatnou,
- dva dětské pokoje,
- samostatnou pracovnu / pokoj pro hosty,
- dvě koupelny,
- samostatné WC,
- technickou místnost,
- zádveří s dostatkem úložného prostoru.

