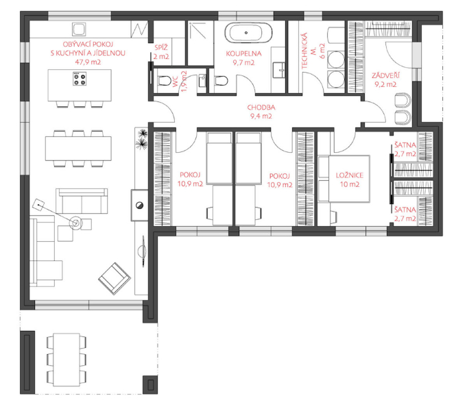
Jednopodlažní dům o dispozici 4 + kk je velmi zajímavě řešený. společný prostor obývacího pokoje, kuchyně a jídelny a další tři pokoje disponují přímým vstupem do zahrady. nechybí tu prostorné zádveří s úložným systémem a spíž. Praktické jsou i dvě samostatné šatny u ložnice rodičů. dále jsou součástí domu samozřejmě koupelna a Wc + technická místnost. odvážně řešený interiér s designovými prvky a otevřením prostoru do krovu a zčásti zastřešenou terasou je už jen třešničkou na dortu, stejně jako pokročilé technologie pro vytápění: podlahový systém rehau, tepelné čerpadlo ivt a rekuperace Zehnder.
Otevření interiéru do krovu spolu s přesahem štítu, který chrání terasu, vytváří ideální podmínky pro relaxaci na zahradě za jakéhokoliv počasí, navíc dává domu typickou tvář
Mohutný kovový krb, zásobník na dřevo z kovových trubek, betonové police – dalo by se mluvit o industriálním stylu, dřevěné prvky a pohodlná sedačka ale vnášejí do interiéru útulnost
Koupelna nepostrádá nic, co dnes patří k wellness stylu, tedy solitérní vanu, dvě umyvadla nad dřevěnou deskou, dřevěné obložení a stylové osvětlení


