Když se řekne srub, nemusí jít nutně o stavbu z hrubě otesaných kmenů, zasazenou doprostřed americké divočiny. Srubové domy si staví už po staletí také obyvatelé severní Evropy. Ty daly základ moderním stavbám, které vycházejí z původního vzhledu a stavebního materiálu, ale využívají moderní výrobní a stavební technologie s lepšími užitnými vlastnostmi. Jde především o oblast tepelné izolace, na niž se s ohledem na současný trend úspor energií klade největší důraz.
Vzorové bydlení

Majitel stavební firmy Koželuha je jedním z těch stavitelů, pro něž se domy z vlastní produkce staly nejen obchodním artiklem, ale i domovem, vzorovým domem a pracovištěm zároveň. Tento přístup může být pro potenciální klienty jak prvotní zárukou kvality, tak i zdrojem odpovědí na otázky z reálného užívání srubových domů. V domě ve Vraném nad Vltavou se mohou zájemci seznámit s technologií výstavby, dispozicemi i nezaměnitelnou atmosférou a zdravým klimatem, které v domech z masivního dřeva panuje.
Dům si navrhl sám majitel, autorem projektu je ing. arch. Hynek Šimon a firma ho v současnosti nabízí pod katalogovým číslem 183. Vzorový dům zároveň ukazuje, jaké možnosti stavba skýtá, co se týče změn dispozičního řešení, typu vnitřních příček atd. Standardní jsou dvě až tři možná řešení dispozic. Po malé úpravě lze dům využívat jako dvougenerační nebo dokonce ještě s tzv. vejminkem.
Typové domy tvoří u stavební firmy Koželuha jen zhruba 10 % z celkové výstavby. Firma upřednostňuje individuální výstavbu, která může maximálně dostát všem nárokům investora. Při dodávce na klíč je běžná doba od zahájení projektu do předání kompletní stavby jeden rok, od položení základové desky šest měsíců.
| Více článků z rubriky BYDLENÍ najdete na www.mujdum.cz nebo www.modernibyt.cz. |
Bydlení nejen pro zálesáky
Na rozdíl od původních srubů se při výstavbě těchto srubových domů nepoužívají celé opracované kmeny, ale trámy, lepené ze šesti dokonale vysušených podélných přířezů, vybraných přímo ze středu kmenů, kde je dřevo nejkvalitnější. Tato technologie zaručuje trámům dokonalou pevnost a stabilitu. Nemají na ně vliv teplotní změny, dřevo se nekroutí, nepraská. K lepení se používají netoxická lepidla, povrchově se trámy ošetřují tenkovrstvými vodou ředitelnými lazurami. Nejčastějším materiálem je borové, v případě vzorového domu smrkové dřevo, pocházející z kontrolovaných těžeb z finských lesů, kde specifické podnebí pozitivně ovlivňuje růst i jeho kvalitu.
Dřevo je pevnější, hutnější a má i vyšší obsah dřevní hmoty. Trámy se k sobě spojují pomocí dvojitých, případně trojitých drážkových a pérových spojů, zaručujících pevnost a stabilitu jednotlivých trámů i celé stavby. Tento způsob spojení vylučuje vznik jakýchkoliv mezer a stavba již nepotřebuje dodatečnou tepelnou izolaci, nemluvě o tom, že dřevo je samo o sobě výborným izolantem.
Přírodní materiály nechybí ani na konstrukci střechy. Klasický krov je sestaven z KVH konstrukčních hranolů, které jsou vyráběny obdobnou technologií a mají i obdobné vlastnosti jako trámy použité na konstrukční systém domu.
Po zkušenostech z prvních celodřevěných staveb dnes firma nabízí více variant řešení interiérových příček. Vyzděné nebo sádrokartonem obložené příčky vnáší do interiéru odlehčení a nabízejí více variant finálních úprav. Vhodnější jsou také pro koupelny, kde je lze dokončit praktičtějšími obklady.
Na prohlídce domu

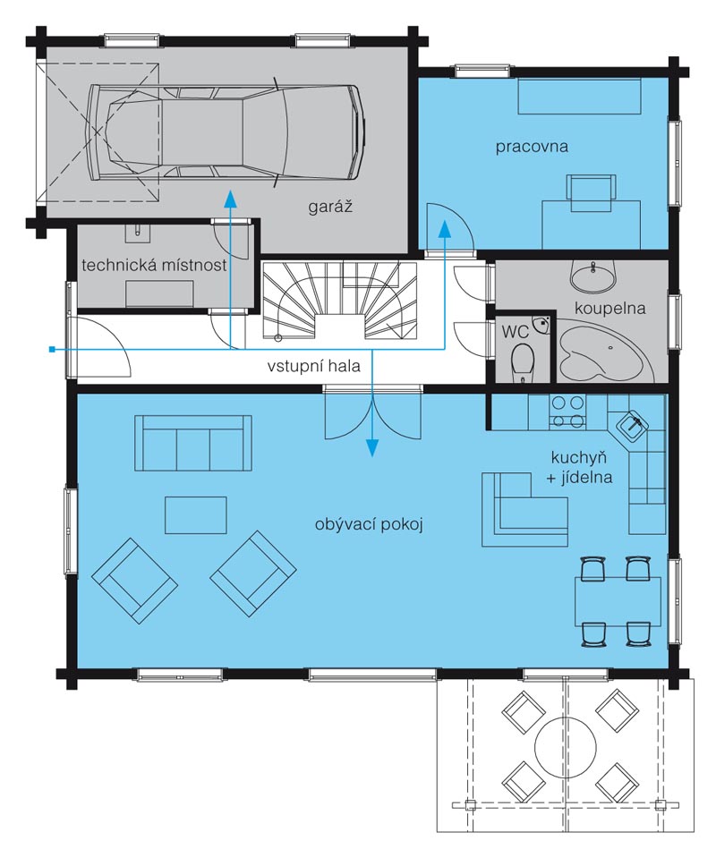
Osou domu je vstupní chodba, z níž lze vstoupit jak do společného obytného prostoru, tak do pracovny, sociálního zázemí a přes technickou místnost do garáže. Po pravé straně se z chodby vchází do centrálního obytného prostoru, spojujícího obývací pokoj, jídelnu a kuchyňský kout. Řada francouzských oken nejen zaručuje velmi dobré osvětlení, ale umožňuje vizuální i přímý kontakt se zahradou, jedno z oken vede na krytou terasu za domem. Středem chodby prochází schodiště vedoucí do soukromé zóny v podkroví. Kolem centrální haly jsou zde soustředěny ložnice rodičů, dětské pokoje, místnost pro domácí práce a rodinná koupelna. Nad chodbou se nachází ještě menší úložný prostor, přístupný dvířky ve stropě.
Technické údaje |
|
|
Užitná plocha |
183,2 m² |
|
Zastavěná plocha |
110,25 m² |
|
Konstrukční řešení |
betonová základová deska, srubová konstrukce z lepených smrkových trámů, v interiéru stěny buď ze smrkových trámů nebo vyzděné či obložené sádrokartonem, strop z lepených trámů se záklopem, dokončený palubkami, schodiště smrkový masiv, dřevo ošetřeno tenkovrstvými vodou ředitelnými lazurami |
|
Střecha |
klasický krov z KVH hranolů, střešní krytina Tondach |
|
Výplně otvorů |
eurookna s izolačním trojsklem, střešní okna ROTO, interiérové dveře a zárubně z dřevěného masivu |
|
Vytápění |
přímotopný elektrokotel, podlahové vytápění, v koupelně topný žebřík, v obývacím pokoji krbová kamna |
|
Cena tohoto domu na klíč |
4 223 000 Kč |


Kontakt
Koželuha, s. r. o.
V Lesíčku 625/7, Praha 5
tel.: 257 741 099
mobil: 602 668 089
e-mail: info@kozeluha.cz
