![]() |
„…za rozpuklinou mraků stál zřícený hrad Jestřebí, co loď mořská, v pestrých barvách oblé duhy jako za barevným závojem,“ popsal při pohledu z Bezdězu romantický básník Karel Hynek Mácha trosky objektu pocházejícího z raného středověku. Pestrobarevné a veselé je na jaře i širší okolí středověké tvrze. Atmosféra severního pohraničí s klasickými roubenými patrovými stavbami vás ale začne strhávat už v okamžiku, kdy se ve směru od Prahy silnice zařízne do dlouhého údolí. Na jeho konci si při pohledu na zbrusu nový dům od architektů Aleše Lapky a Petra Koláře uvědomíte, že se díváte na klenot. Objekt, který skvěle zapadá do tradičního prostředí s původní zástavbou, je totiž na českém venkově stále ještě veliká vzácnost. |
Klid a pohodaCelistvý dům s klasickou sedlovou střechou a jednoduchým obdélníkovým půdorysem si vaši přízeň získá hned při pohledu ze severní části u příjezdové cesty, odkud se vchází na pozemek i vjíždí do garáže. Garáž je vkomponovaná do budovy a lze z ní vejít přímo do vstupní chodby, která probíhá napříč celou stavbou. Zděný objekt nechali autoři ze studia ADR obložit smrkovým dřevem a cembonitovými deskami.
Fasádu rytmizují pravidelně rozmístěné čtvercové okenní otvory na úrovni podkroví. Zpočátku jsem si nebyl jist, zda jsou dostatečně velké, aby prosvětlily celý interiér. Moje pochybnosti se však při prohlídce domu zcela rozptýlily. Do přízemí totiž přirozené světlo proudí jižní prosklenou stěnou, kterou do obývacího pokoje vstupuje zahrada, na jejímž pozadí se objevují pískovcové masivy s bukovými háji. Svoji roli hraje i vodorovné okno v kuchyni, odkud se paní domu může těšit výhledem do korun stromů borového lesa. Patro pak vydatně pomáhají prosvětlovat dva střešní světlíky. |
Kouzlo jednoduchostiUž když vejdete do vstupní chodby, uvědomíte si, že se nacházíte v domě s přátelskou atmosférou, kde jsou jednotlivé detaily dotaženy do konce s filigránskou přesností. Vůně smrkového dřeva vás upozorní, abyste již zde věnovali bližší pozornost nábytku. Několik vestavných skříní poskytuje dostatek místa nejen pro botník a šatník, ale třeba i pro zahradní nářadí či jízdní kola.
Po vstupu do obývacího pokoje spojeného s jídelním koutem a kuchyní si vás dům podmaní nadobro. Dubová podlaha s výraznou kresbou, krbová vložka a stěna s dostatkem prostoru pro pořádnou zásobu polen, jednoduchý nábytek a zmíněné výhledy do okolní přírody evokují chalupářské bydlení. Tento dojem posilují monolitické betonové stropy zaklopené smrkovými deskami.
|
![]() |
|
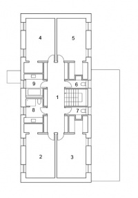
Prostory technického a sociálního zázemí autoři Petr Kolář a Aleš Lapka vložili mezi obytnou část a garáž, která hmotu domu ukončuje. Díky tomuto schématu získává celý obytný prostor tři fasády se zmíněnými výhledy do malebného okolí.
|
![]() |
TECHNICKÉ ÚDAJE:Dispozice: 5 + 1 |
Komfortní podkrovíVýrazným prvkem interiéru je bezesporu jasně vnímatelný blok schodiště, pod jehož rameny se nachází jeden z mnoha úložných prostor. Buková stěna bloku, průhledné sklo oddělující podestu od obývacího pokoje a nerezové zábradlí tvoří jeden celek.
Schody vás poté přivedou do podkroví. Ve vnitřní části dispozice se nachází vstupní hala, v rozích domu pak najdete čtyři ložnice. Uživatelský komfort zvyšují dvě koupelny a dvě samostatná WC. V nice naproti schodům bude místo pro odkládání kabátů.
A co se manželům na jejich bydlení líbí nejvíc? Nepodsklepený dům dokonale zapadá do okolní přírody a jeví se i jako přirozený „následovník“ okolních roubenek. Všechny materiály jsou použity ve své přirozené podobě a barevnosti, a vytvářejí tak lehce „drsnější“ prostředí, typické pro venkov. Naslouchat šepotu větru v korunách stromů a zpěvu ptáků, pro které majitel vybudoval na zahradě několik budek, je navíc po velkoměstském ruchu a shonu příjemná změna.
|
|
|
ARCHITEKTIMgr. Aleš Lapka (1970) absolvoval Střední uměleckoprůmyslovou školu v Praze 3. Poté vystudoval pražskou Vysokou školu uměleckoprůmyslovou. Praktikoval v ateliéru Jakub Cigler Studio a v D. A. Studiu, v letech 1993 až 1995 spolupracoval s architektonickou kanceláří Eva Jiricna Ltd. Do roku 2003 působil ve společnosti Architectural Associates, s. r. o. Od roku 1996 je členem studia ADR, s. r. o. Mgr. Petr Kolář (1967) absolvoval Střední průmyslovou školu stavební v Praze 5. Poté vystudoval pražskou Vysokou školu uměleckoprůmyslovou. V letech 1992 až 1993 působil v D. A. Studiu, do roku 1995 praktikoval a spolupracoval s architektonickou kanceláří Eva Jiricna Ltd. Do roku 2003 se podílel na činnosti společnosti Architectural Associates, s. r. o. Od roku 1996 je členem studia ADR, s. r. o. |
Kontakty:ADR, s. r. o.
Architektura, design, realizace
Libínská 3127/121,
150 00 Praha 5 tel.: 257 210 252, 257 210 269
fax: 257 2210 244
e-mail: adr@adr.cz, www.adr.cz
Nábytek Říha
Bytový a kancelářský nábytek
Sokolovská 175,
190 00 Praha 9-Balabenka tel./fax: 266 310 147,
mobil: 602 245 858 |
![]() |







