Pozemek v nové čtvrti malého severomoravského města měl dvě hlavní devizy, které se podařilo v návrhu rodinného domu skvěle zhodnotit: orientaci na jih a výhled na panoráma Beskyd s Lysou horou.

Architekti z ateliéru UYO pro rodinu již jeden rodinný dům navrhovali, takže druhá zakázka svědčila o spokojenosti klientů. „To pro nás znamenalo výhodu a zároveň závazek,“ říká architekt Adam Zezula, jeden z autorů návrhu. „Stavební program klienti jasně formulovali, všechna řešení s námi podrobně konzultovali z hlediska architektonického řešení, materiálů a samozřejmě ceny.“ Podstatou zadání bylo pohodlné bezbariérové bydlení, tím však byla možnost využít unikátní výhled do daleka s Lysou horou na horizontu omezená – bránily mu okolní vzrostlé stromy, takže vidět byla až z úrovně druhého podlaží. Architekti si poradili s moudrostí chytré horákyně.

Osy a průhledy
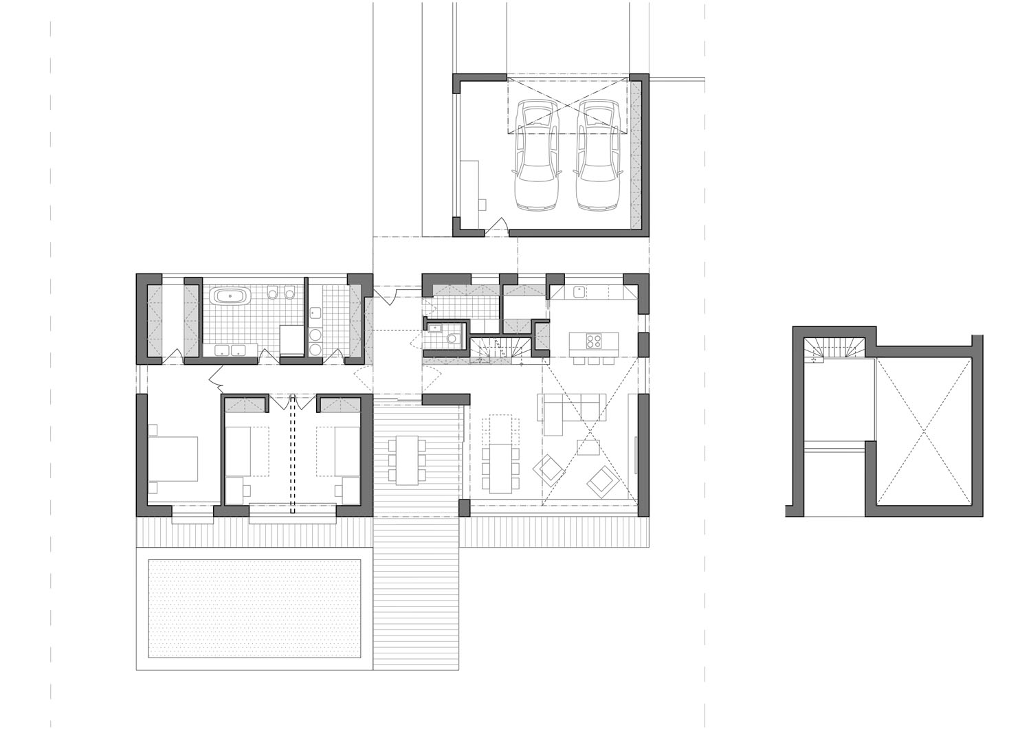
Obdélníkový půdorys je přehledně členěn dvěma komunikačními liniemi, které zároveň tvoří navzájem kolmé linie průhledů domem. První směřuje od severu k jihu, vede středem dispozice a rozděluje ji na společný obývací prostor (kuchyně, jídelna, sezení) a na ložnicovou část se třemi pokoji a zázemím. Již od vstupu do domu se otevírá průhled skleněnými dveřmi přes zádveří a halu na krytou terasu a zahradu na opačné straně.
Druhá, východo–západní linie odráží princip energeticky úsporného stavění – odděluje obytné prostory orientované na jih od zázemí na severní straně. Okna na konci chodby a skleněné dveře pak přirozeně směřují linii pohledů celým domem až ven do půvabných zákoutí zahrady.
Dominantním znakem, který propůjčuje architektuře výraz a nezaměnitelnou identitu, je atypická valbová střecha.
Nesouměrný tvar, který kombinuje táhlý sklon se strmým, byl navržen s jasným účelem. Umožnil vybudovat v podkroví odpočívárnu s vytouženým výhledem na Lysou horu, jejíž siluetu napodobuje. Odpočívárna je řešena jako otevřená galerie nad společným obývacím prostorem a nabízí atraktivní výhledy jak dovnitř, tak ven.

Materiály, které se osvědčily
Stavba byla realizována technologií, která se stavebníkům osvědčila – z cihel Porotherm s větraným obvodovým pláštěm, který tvoří izolace z minerální vlny, větraná vzduchová mezera a přizdívka z ražených lícových cihel Klinker Centrum. Autentický „syrový“ pálený vzhled fasády se stal druhou výraznou složkou architektonického výrazu a klinkery přinesly také řadu dalších benefitů.
„Výhodou cihelné přizdívky je její trvanlivost až nesmrtelnost a také její velká masa, která může dobře fungovat v letních měsících a brzdit přehřívání objektu. Přizdívku bylo možné realizovat především proto, že investor byl ochoten do ní investovat. Také jsme z předchozí realizace věděli, že jsme schopni různé detaily dobře dotáhnout a měli jsme dobré zkušenosti s realizační firmou,“ dodává Adam Zezula.
Zárukou dlouhé životnosti a trvanlivosti jsou i hliníková okna a střešní krytina z falcovaného titanzinkového plechu. Malý technický oříšek představovala samotná konstrukce střechy. Asymetrický tvar vznikl spojením příhradových vazníků v nižší části nad ložnicemi a atypického ocelodřevěného krovu nad odpočívárnou a obývacím pokojem.
Na kvalitu stavebníci vsadili i v otázce vybavení domu. Zařízení bylo zhotoveno na míru a také zde se orientovali především na přírodní materiály – dřevo, keramické dlažby a teplé neutrální barvy. Hodně světla, orientace na jih, světlé tóny a příroda hned za okny dodávají interiéru jas a optimistickou náladu.

V Kostce:
Dispozice: 5 + 1
Zastavěná plocha: 280 m2
Užitná plocha: 203,7 m2
Lokalita: Ostravsko
Dominantním znakem, který propůjčuje architektuře výraz a nezaměnitelnou identitu, je atypická valbová střecha.
Autoři:
Ing. arch. Adam Zezula, Ing. arch. Jan Skoumal, Ing. arch. Kamil Zezula, Ing. arch. Alena Křížová (UYO architekti, s. r. o.)
Ateliér UYO architekti založený v roce 2014 se stal součástí mladé generace architektů, etablovaných mimo jiné úspěchy v architektonických soutěžích. Díky dynamickému týmu a množství zkušených spolupracovníků se ateliér UYO zabývá celou škálou architektonických zadání od zpracování návrhů interiérů přes analýzy a řešení veřejných prostranství a projektů staveb různých měřítek pro soukromý i veřejný sektor až po návrhy urbanistických strategií a vizí měst a obcí.
Spolupráce: Mgr. Art. Moškoř Vojtěch (MOSKOR DESIGN, s. r. o.) – interiér
Naďa Nevařilová, Michal Zuzák – zahrada
Hodně světla, orientace na jih, světlé tóny a příroda hned za okny dodávají interiéru jas a optimistickou náladu.

Zařízení bylo zhotoveno na míru, s důrazem především na přírodní materiály – dřevo, keramické dlažby a teplé neutrální barvy.
Technické údaje:
Zastavěná plocha: 280 m2
Užitná plocha: 203,7 m2 (vč. garáže, bez terasy a jiných venkovních prostor)
Konstrukce: betonové základové pasy a podkladní deska, zdicí systém Porotherm, obvodové zdivo tl. 240 mm, vnější zateplení min. vlnou, větraná vzduch. mezera, přizdívka z cihel Klinker Centrum (WDF. Blue Velvet), střecha – příhradové sbíjené vazníky, asymetrický tesařský krov z KVH hranolů s ocelovými prvky, sádrokartonové podhledy, větraný střešní plášť, zateplení minerální vlnou, střešní krytina falcovaný titanzinkový plech
Výplně otvorů: okna a HS portály – hliníkové s izolačními trojskly, předokenní žaluzie na el. pohon, vnitřní dveře dýhované bezfalcové s obložkovými zárubněmi a skleněné (výroba na zakázku), sekční garážová vrata
Vytápění: podlahové teplovodní vytápění, zdroj energie TČ vzduch-voda

Dodavatelé:
Stavební firma: Krolstav Beskyd, s. r. o., www.krolstav.cz
Zdivo: Wienerberger, s. r. o., www.wienerberger.cz
Přizdívka: Klinker Centrum, s. r. o., www.klinkercentrum.cz
Okna: ALWIN START, s. r. o., www.alwin.
Dveře: DEOS – Havířov, www.fadeos.cz
Realizace interiéru: Bostr interier, www.bostr-interier.cz
Realizace zahrady: Michal Zuzák
Foto: Ing. arch. Václav Novák









