|
Vzhledem k rozmístění jednotlivých staveb na pozemku, které svým tvarem a uspořádáním rozčleňují daný prostor, by budoucí zeleň měla mít spíše sjednocující efekt. Kompoziční návrh zahrady je proto pojat jednoduše, aby korespondoval se stylem domu. Ten se vyznačuje moderním hranatým designem, budova je rozdělena na dvě části. Garáž spojuje s budovou pergola, další pergola je na východní straně u vjezdu na pozemek. |
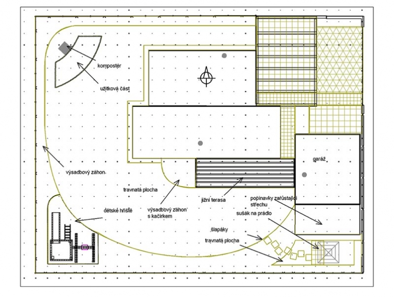
PŘÁNÍ INVESTORŮ■ Navrhnout v budoucí zahradě užitkovou část v podobě záhonků pro jahody, bylinky a sezonní zeleninu, doplněnou o drobné ovoce a ovocné stromy. |
![]() |
|
|
Pro krásu i užitekVýsadbový záhon vytvoří jednoduchou, souvislou křivku, která povede od jihovýchodního rohu do severozápadní části. Uvnitř tohoto prostoru vznikne plocha pro sušení prádla, přístupná pomocí nášlapné dlažby přímo přes vysazenou zeleň. Díky tomuto umístění nebude pověšené prádlo rušit pohled ze žádné části zahrady. Do výsadbového záhonu je též včleněno dětské hřiště, které je naopak viditelné ze všech částí zahrady a umožní mít děti pod dohledem v podstatě nepřetržitě. Užitkovou část jsem situoval do severozápadní části pozemku. Je oddělena od okrasné části úzkým pásem travnaté plochy, takže bude přístupná a jednoduše obdělávatelná ze všech stran. V severní části záhonků jsou navrženy keře drobného ovoce, které odcloní prostor pro kompost nebo kompostér, který majitelé na tak velké zahradě jistě uvítají.
Posezení pod cedremNa pozemku budou založeny ještě dva výsadbové záhony. První bude u vjezdu do garáže v severozápadní části zahrady a poskytne prostor společenstvu stínomilných rostlin, druhý, reprezentativní, vznikne u jižní terasy a bude zamulčován kačírkem nebo říčním kamenivem doplněným okrasnými kameny. Dominantou tohoto prostoru se stane převislý neopadavý jehličnan – cedr. |
|
Při pohledu z jižní terasy se nám naskytne pohled na ucelenou jednolitou zeleň, která bude mít v každém místě trochu jiný charakter a jinou funkci. Vždy je ale pamatováno na to, aby tato plocha měla intimní, ničím nerušený charakter. VHODNÉ DRUHY |
|
STÍNOMILNÉ ROSTLINY DO PŘEDNÍ ČÁSTI: Hydrangea macrophylla – hortenzie velkolistá |
![]() |
|
|
DRUHY VHODNÉ PRO POUŽITÍ U TERASY: Juniperus horizontalis Wiltonii – jalovec polehlý |
|
![]() |
ZAHRADNÍ ARCHITEKTBc. ONDŘEJ TUREK (1970) Po ukončení studia Střední zahradnické školy v Mělníku působil několik let jako mistr odborného výcviku na Zahradnickém učilišti v Praze-Malešicích. V té době ho začala víc a víc přitahovat zahradní architektura, a proto se rozhodl pro bakalářské studium na ČZU v Praze-Suchdole. Od absolutoria uběhlo již deset let, která věnuje projektování rodinných zahrad a veřejné zeleně. Během let uskutečnil několik tematicky inspirativních studijních cest po Americe a Asii. Je spolumajitelem projekčního ateliéru Garden Point. |
|
Kontakty
Bc. Ondřej Turek |





