Proč jste se rozhodli nechat si postavit dům na klíč?
Naše cesta k vlastnímu domu byla dlouhá a plná překážek. Již před 15 lety jsme začali vážně uvažovat o postavení vlastního domu, ale v té době, ačkoliv byly dostupné pozemky, nám chyběly finanční prostředky na realizaci. Situace se změnila v roce 2020, kdy jsme již měli potřebné finance, avšak potýkali jsme se s obtížemi při hledání vhodného pozemku.
Naše hledání bylo nakonec úspěšné koncem roku 2020, kdy jsme na realitním trhu objevili pozemek, který nás zaujal svou lokalitou. Tato příležitost nás přesvědčila k rychlému rozhodnutí a zakoupení pozemku, což byl rozhodující krok k tomu, aby se náš sen o vlastním domově stal skutečností.
Měli jste představu, na koho se obrátit ohledně stavby vašeho domu?
Když jsme se rozhodli postavit vlastní dům, nebyli jsme si úplně jisti, na koho se obrátit. Naše hledání na internetu nás nakonec přivedlo k firmě ekonomické stavby (ES), jejichž nabídka nám nejvíce vyhovovala. Po prostudování jejich katalogu jsme byli nadšeni typem domu Kristýna 8, což nás vedlo k rychlé koupi pozemku v únoru 2021 a následnému jednání s panem Fryčkem z ES, které odstartovalo celý proces výstavby.

Měli jste vlastní finanční prostředky, nebo jste využili nabízený z programů od ES?
Pro financování naší stavby jsme využili naše vlastní finanční zdroje, což nám umožnilo přizpůsobit splátky podle postupu výstavby. To pro nás bylo velmi výhodné, protože jsme mohli postupovat s výstavbou v souladu s našimi finančními možnostmi a bez zbytečného tlaku. Vzhledem k manželovu onemocnění jsme byli velice rádi, že nám firma ekonomické stavby nabídla kompletní řešení „na klíč“, včetně veškerého vyřízení administrativy a zajištění stavebního povolení. Toto řešení nám výrazně usnadnilo celý proces a umožnilo se soustředit na jiné aspekty našeho života během výstavby našeho nového domova.
Byli jste spokojeni s průběhem stavby?
Během celého průběhu stavby jsem byla s jejím postupem nadmíru spokojena, neboť jsem sledovala její pokrok téměř denně. Velký dík patří celé stavební partě pod vedením pana Königsmarka, která pracovala s vysokou odborností a vždy byla ochotná vyjít vstříc mým přáním, i když někdy byla poněkud odvážná.Obzvláště bych chtěla vyzdvihnout pana Vasila a jeho syna, stejně jako oba Václavy, jejichž práce na stavbě byla bezchybná. Neméně důležitý byl také přínos pana instalatéra Dražana a týmu elektrikářů vedených panem Rašinem, kteří pracovali s klidem a zodpovědností, což mi přineslo velkou spokojenost. Celkově jsem byla nadšená a šťastná ze všeho, co se dělo kolem stavby našeho domu.

Jak se vám v novém domě žije? Změnili byste něco?
V našem novém domě se cítíme velmi dobře a jsme s ním naprosto spokojeni. Kolaudace, která proběhla 24. listopadu 2022, byla pro nás důležitým milníkem, kdy jsme dům plně a s láskou zabydleli. Následně jsme se pustili do úprav okolí domu, kde jsme postupně, v souladu s počasím, upravili terén, vysázeli stromy, okrasné keře a vytvořili zeleninové záhony a vyvýšené záhonky.
Jsme s manželem opravdu šťastní, že jsme se pro tento krok rozhodli, a v našem novém domově se nám žije skvěle. Na našem rozhodnutí o stavbě tohoto domu bychom nic neměnili, neboť splňuje všechny naše představy a potřeby.

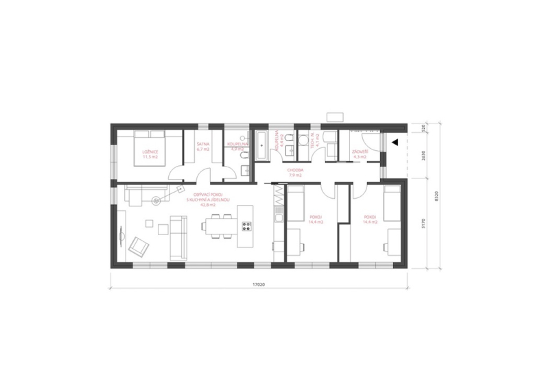
Technické údaje dům Kristýna 8
Dispozice: 4 + 1
Rozměry: 12,3 × 11,5 m
Zastavěná plocha: 119,3 m2
Užitná plocha: 97,2 m2
Cena v programu Zlaté ručičky: 3 100 000 Kč
Měsíční splátka v programu Zlaté ručičky: 14 992 Kč
Cena za luxusní provedení: 4 650 000 Kč
Měsíční splátka luxusní provedení: 22 488 Kč
www.ekonomicke-stavby.cz
Více o domě Kristýna 8 se dozvíte ZDE.

TEXT A FOTO: EKONOMICKÉ STAVBY







-661680a6ab1ed.jpg)


-6613f2ed47a05.jpg)




-660d837ab986d.jpg)
-660d8388245f5.jpg)
-660d838fa03e9.jpg)
