Katalog Energeticky úsporných domů 2012 ukazuje trendy soudobé výstavby založené na principech komfortního bydlení s důrazem na energetickou úspornost, akustickou pohodu a kvalitu vnitřního prostředí zejména z pohledu dostatku denního světla, trvalého přísunu čerstvého vzduchu a příjemných vnitřních povrchových teplot.
Líbí se Vám možnost vybrat si dům z již navržených nebo realizovaných domů, které můžete případně i vidět? Mezi zásadní novinky letošního vydání katalogu Energeticky úsporných domů totiž patří možnost zakoupení projektů prezentovaných domů za uvedenou cenu, dále nabídka pasivních a nízkoenergetických domů na klíč a rozšíření katalogu projektů na česko – slovenský region s možností porovnání a posouzení jednotlivých architektonických řešení.
V katalogu je prezentováno celkem 65 projektů energeticky úsporných domů od zhruba 40 českých a slovenských architektů či architektonických kanceláří, jež jsou nově nabízeny jako opakovatelné projekty, které si může zájemce zakoupit ve fázi pro stavební povolení či mohou sloužit jako ukázka rukopisu jednotlivých architektů pro oslovení a vytvoření zcela individuálního projektu. Tyto projekty doplňuje dále nabídka 15 energeticky úsporných domů na klíč.
Katalog Energeticky úsporných domů obsahuje:
-
vysvětlení základních principů energeticky úsporných domů,
-
domy na klíč a projekty do 30 kWh/(m2a) podle PHPP,
-
projekty od předních architektů Česka a Slovenska,
-
technické listy výrobků pro energeticky úsporné domy,
-
a hlavně prezentuje variabilitu architektury energeticky úsporného stavění z hlediska velikosti, vzhledu či konstrukčního i materiálového řešení.
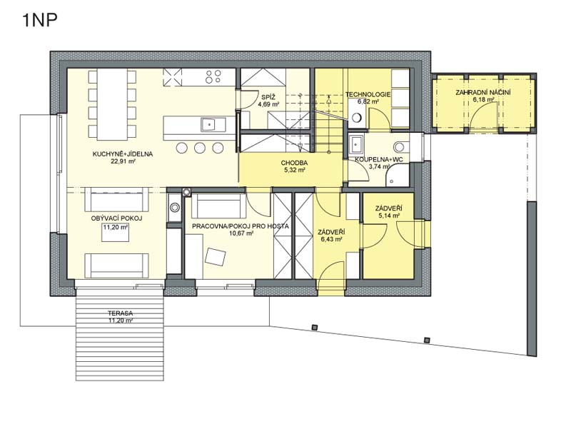
PROJEKT VERONIKA 2.01 |
Projekt rodinného domu Veronika 2.01 řeší dvoupodlažní dům s pultovou střechou o velikosti bytové jednotky 4+1. Dům je celkově řešen podle zásad pro pasivní domy a tím je předurčen k úspornému provozu. Moderní vzhled domu dotváří plechová pultová střecha a pás oken v hladké probarvené omítce. Pro přirozené stínění a vytvoření pohody na terase před domem je při celé jižní fasádě navržena pergola se stahovacími roletami. Pod částí pergoly je vložena zimní zahrada. Ze severní strany k domu přiléhá garáž. |
IDENTIFIKAČNÍ ÚDAJE |
| Název stavby: Veronika 2.01 | Autoři projektu: Ing. arch. Lubomír Křivka | Zastavěná plocha: 144,38 m² | Užitná plocha: 179,30 m² | Vytápěná plocha: 121,4 m² | Obestavěný prostor: 909,00 m³ | Měrná potřeba tepla na vytápění dle PHPP: 15,2 kWh/m2 za rok |
KONSTRUKČNÍ ŘEŠENÍ |
Základy a spodní stavba: základové pasy z prostého betonu. | Svislé nosné a dělicí konstrukce: obvodové a nosné zdivo je vyzděné/lepené z vápenopískových cihel KM BETA tl. 200 mm, příčky tl. 125 mm. | Stropní konstrukce: keramický zmonolitněný strop CZP STROPY. | Nosná konstrukce střechy: keramický zmonolitněný strop CZP STROPY. | Schodiště: J.A.P. celodřevěné schodiště včetně zábradlí a madla. | Výplně otvorů: Okna dřevěná Slavona SC92, Ug=0,6 W/m2.K, Uf=0,7 W/m2.K. | Tepelné izolace: obvodový plášť – polystyren Isover EPS GreyWall, U=0,11 W/Km2, podlaha – polystyren Isover EPS Grey 150, U=0,13 W/Km2, střecha – MK – KF U=0,09 W/K.m2. |
TECHNICKÁ ŘEŠENÍ |
| Hlavní zdroj energie: Tepelné čerpadlo vzduch – voda. | Doplňkový zdroj(e) energie: Není. | Vytápěcí systém: Podlahové teplovodní vytápění. | Způsob větrání a výměny vzduchu: Nucené větrání s rekuperací tepla. | Řešení letního přehřívání budovy: Venkovní žaluzie, posuvná látková markýza. |
![]() |
![]() ![]() |
| Cena projektové dokumentace: 42 300 Kč / 1 692 € Cena hrubé stavby: 1,4 – 1,7 mil. Kč / 55 – 69 tis. € Cena domu na klíč: 5,5 – 6,8 mil. Kč / 218 – 273 tis. € Orientační náklady na vytápění: 4 200 Kč / 168 € Všechny ceny jsou uvedeny bez DPH
|
|
Absolvent Fak. architektury ČVUT./ 1977/, člen ČKA /od r. 1993/, VPÚ, PÚ ČSVD, REMOSTAV /1977-1990/, od r. 1990 majitel ARCHITEKTONICKÉ KANCELÁŘE KŘIVKA s.r.o. zajišťující kompletní servis v přípravě a zpracování projektů, konzultační a inženýrské činnosti. Zaměření na pozemní stavby, s převahou staveb pro bydlení. Dlouhodobě se věnuje projekci a propagaci rodinných domů se sníženými nároky na vytápění. Autor řady nízkoenergetických typových a individuálních projektů rodinných domů. Více na www.arch-krivka.cz, www.nasdum.cz. |
Díky spolupráci se sdružením Centrum pasivního domu došlo k jednotnému hodnocení domů v programu PHPP, a tedy k prezentaci skutečně prověřených a kvalitních pasivních a nízkoenergetických domů do 30 kWh/(m2a) roční potřeby energie na vytápění pro klimatické podmínky České republiky.
Pokud se v současné době rozhodujete, v jakém domě chcete v následujících letech bydlet a žít, vychovávat vaše děti, relaxovat, trávit čas s rodinou a přáteli, doporučujeme Vám nejen pro inspiraci nahlédnout do katalogu Energeticky úsporných domů 2012.
PROJEKT RD Nová Paka II. |
![]() Jedná se o dům pro rodinu s až čtyřmi dětmi umožňující práci z domova v oddělené pracovně. Návrh je vypracovaný na parcelu v mírném jižním svahu s příjezdem z jihovýchodní strany. Nosné stěny jsou vyzděné z vápenopískových bloků, vnitřní zdi je potom možné provést jako lehké příčky. Fasáda je kontaktně zateplená šedým polystyrenem a obložená lídovými pásky. Pultová střecha s provětrávanou skladbou nesená dřevěnými I profily je vyplněná foukanou celulózou a krytá profilovaným plechem. |
IDENTIFIKAČNÍ ÚDAJE |
| Název stavby: RD Nová Paka II. | Autoři projektu: Ing. arch. Vojtěch Jirsa, Ing. arch. Prokop Jirsa | Zastavěná plocha: 140 m² | Užitná plocha: 155 m² | Vytápěná plocha: 135 m² | Obestavěný prostor: 670 m³ | Měrná potřeba tepla na vytápění dle PHPP: 24,6 kWh/m2 za rok. |
KONSTRUKČNÍ ŘEŠENÍ |
Základy a spodní stavba: Betonové šalovací tvárnice. | Svislé nosné a dělicí konstrukce: Vápenopískové tvárnice. | Stropní konstrukce: Monolitický betonový strop. | Nosná konstrukce střechy: Dřevěné nosníky. | Schodiště: Monolitické betonové. | Výplně otvorů: Dřevěná eurookna IV92, izol. trojsklo, plastový dist. rámeček. | Tepelné izolace: Šedý fasádní polystyrén, foukaná celulóza. |
TECHNICKÁ ŘEŠENÍ |
| Hlavní zdroj energie: Kompaktní VZT jednotka s TČ na odpadním vzduchu. | Doplňkový zdroj(e) energie: Krbová vložka. | Vytápěcí systém: VZT+podlahové topení. | Způsob větrání a výměny vzduchu: Řízené větrání s aktivní rekuperací. | Řešení letního přehřívání budovy: Venkovní žaluzie a rolety. |
![]() |
![]() ![]() |
| Cena projektové dokumentace: 49 167 Kč / 1 967 € Cena hrubé stavby: 1,0 – 1,3 mil. Kč / 40 – 50 tis. € Cena domu na klíč: 4,0 – 5,0 mil. Kč / 161 – 201 tis. € Orientační náklady na vytápění: 7 500 Kč / 300 € Všechny ceny jsou uvedeny bez DPH
|
|
Jako bratrská dvojice jsme od malička zvyklí se doplňovat a na tomto principu funguje i náš ateliér. Coby architekti spolupracujeme od studií, kdy vznikly naše první společné návrhy. V roce 2009 jsme pak založili ateliér se zaměřením na energeticky úsporné stavby. Zkušenosti z předchozích let se snažíme zahrnout do nových projektů… |
Kontakt
Katalog lze objednat na www.isover.cz či www.pasivnidomy.cz.

Projekt rodinného domu Veronika 2.01 řeší dvoupodlažní dům s pultovou střechou o velikosti bytové jednotky 4+1. Dům je celkově řešen podle zásad pro pasivní domy a tím je předurčen k úspornému provozu. Moderní vzhled domu dotváří plechová pultová střecha a pás oken v hladké probarvené omítce. Pro přirozené stínění a vytvoření pohody na terase před domem je při celé jižní fasádě navržena pergola se stahovacími roletami. Pod částí pergoly je vložena zimní zahrada. Ze severní strany k domu přiléhá garáž.
Základy a spodní stavba: základové pasy z prostého betonu. | Svislé nosné a dělicí konstrukce: obvodové a nosné zdivo je vyzděné/lepené z vápenopískových cihel KM BETA tl. 200 mm, příčky tl. 125 mm. | Stropní konstrukce: keramický zmonolitněný strop CZP STROPY. | Nosná konstrukce střechy: keramický zmonolitněný strop CZP STROPY. | Schodiště: J.A.P. celodřevěné schodiště včetně zábradlí a madla. | Výplně otvorů: Okna dřevěná Slavona SC92, Ug=0,6 W/m2.K, Uf=0,7 W/m2.K. | Tepelné izolace: obvodový plášť – polystyren Isover EPS GreyWall, U=0,11 W/Km2, podlaha – polystyren Isover EPS Grey 150, U=0,13 W/Km2, střecha – MK – KF U=0,09 W/K.m2.


Architektonická kancelář KŘIVKA
Jedná se o dům pro rodinu s až čtyřmi dětmi umožňující práci z domova v oddělené pracovně. Návrh je vypracovaný na parcelu v mírném jižním svahu s příjezdem z jihovýchodní strany. Nosné stěny jsou vyzděné z vápenopískových bloků, vnitřní zdi je potom možné provést jako lehké příčky. Fasáda je kontaktně zateplená šedým polystyrenem a obložená lídovými pásky. Pultová střecha s provětrávanou skladbou nesená dřevěnými I profily je vyplněná foukanou celulózou a krytá profilovaným plechem.
Základy a spodní stavba: Betonové šalovací tvárnice. | Svislé nosné a dělicí konstrukce: Vápenopískové tvárnice. | Stropní konstrukce: Monolitický betonový strop. | Nosná konstrukce střechy: Dřevěné nosníky. | Schodiště: Monolitické betonové. | Výplně otvorů: Dřevěná eurookna IV92, izol. trojsklo, plastový dist. rámeček. | Tepelné izolace: Šedý fasádní polystyrén, foukaná celulóza.


JIRSA-ARCHITEKTI, s.r.o.