|
Projekt domu Praktik 5 + 1 vyšel z požadavku zákazníků společnosti RD Styl na dům dispozičně řešený jako typový dům Rodina, ale velikostně menší, a tím také finančně dostupnější. Nový typ domu si rychle získal příznivce a v současnosti patří spolu s Rodinou k nejžádanějším projektům společnosti RD STYL. Návštěva vzorového domu Praktik 5 + 1 v Olomouci vám poskytne naprosto realistický pohled na budoucí bydlení a více napoví ohledně správnosti výběru. Kromě vlastního dojmu z prohlídky se každému zájemci dostane přímo na místě odborných informací a odpovědí na všechny s výstavbou spojené dotazy. |
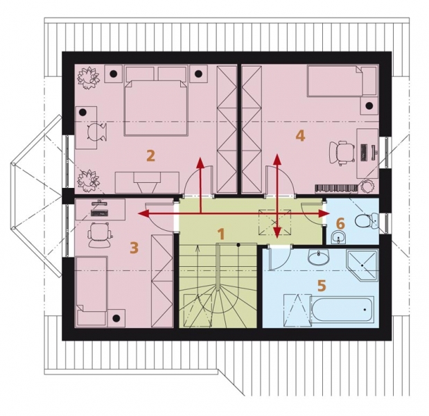
Inspirace venkovskými stavbamiPraktik 5 + 1 je dvoupodlažní dům vzhledově inspirovaný tradičními venkovskými stavbami se sedlovou střechou. Společná obytná část se nachází v přízemí. Obývací pokoj je částečně propojen s jídelnou, na niž volně navazuje kuchyň, přístupná zároveň z chodby. Ta tvoří komunikační osu celého domu, z ní se vstupuje také do jediné uzavřené obytné místnosti v přízemí, která může sloužit jako pracovna nebo hostinský pokoj. Tomuto využití nahrává umístění přímo proti vstupním dveřím do domu i možnost přebudovat WC a sousední technické místnosti na kompletní hygienické zázemí. Naproti vstupu do obývací části vede schodiště do podkroví s rodičovskou ložnicí, dvěma dětskými pokoji, koupelnou a samostatným WC. Přestože je Praktik 5 + 1 typovým domem, lze jej přizpůsobit osobním potřebám klientů. K nejběžnějším změnám patří otočení domu jak v podélném, tak příčném směru. Dům je možné doplnit přiléhajícím garážovým stáním či garáží. |
![]() |
Dobré vlastnosti za přijatelnou cenuVelmi důležitou roli sehrála při navrhování domu cenová kalkulace. Cílem byl vyvážený poměr mezi cenou a užitnými vlastnostmi. Výstavba domu Praktik 5 + 1, která probíhá klasickou zděnou metodou, je cenově srovnatelná s cenou typových dřevostaveb, ale zahrnuje i cenu základové desky. Kombinací tradičního zdiva z pálených cihel, dřevěného krovu a betonové střešní krytiny s novými materiály a technologiemi se podařilo dosáhnout požadovaných tepelněizolačních vlastností a s nimi souvisejících nemalých úspor energie na vytápění.
Nadstandardní vybavení domuVybavení vzorového domu je řešeno částečně v nadstandardním provedení. Oproti základnímu typu má garážové stání, jehož střecha plynule navazuje na střechu domu a zároveň díky protažení nad hlavní vchod umožňuje dojít z auta do domu „suchou nohou“. Vstupní dveře jsou na rozdíl od standardu v dřevěném dezénu s částečným prosklením. Také pro interiér byly zvoleny dveře vyšší kategorie s povrchovou úpravou dřevěnou dýhou. Finální povrch podlah tvoří velkoformátová dlažba a plovoucí laminátová podlaha. Nejdražším doplňkem vzorového interiéru je krb, jehož osazení předcházela instalace komínového tělesa. Krb tu však není jen ozdobným prvkem, ale demonstruje možnost doplňkového vytápění například mimo topnou sezónu, kdy je neekonomické uvádět do provozu centrální vytápěcí systém, přijde-li několik chladnějších dní. Jeho užitná hodnota je znásobena rozvedením teplého vzduchu pomocí průduchů do podkroví.
Výlet za užitkem i zábavouVzorový dům Praktik 5 + 1 je postaven v atraktivním místě – na Svatém Kopečku u Olomouce, a tak se přímo nabízí varianta spojit poněkud prozaickou cestu za informacemi o bydlení s výletem na známé poutní místo a návštěvou olomoucké zoo. Vzorový dům je otevřen denně od 10 do 17 hodin včetně sobot a nedělí. |
PŮDORYSY
|
TECHNICKÉ ÚDAJE
Dispoziční řešení: 5 + 1 |
|
Kontakty
RD STYL, a. s. Stodolní 31, Moravská Ostrava tel.: 596 115 638 fax: 596 115 902
Vzorový dům Olomouc Darwinova 254/017a Olomouc Svatý Kopeček mobil: 731 505 253 e-mail: olomouc@rdstyl.cz |
|

-4def63cd90dae_170x255.jpg)

-4def63c90cc98_290x193.jpg)
-4def63d8710c8_210x204.jpg)
-4def63c5d6930_220x147.jpg)