Malý třípokojový byt už manželům s dospívající dcerou a dvěma psíky zkrátka nestačil, a proto se rozhodli pro rodinný domek na venkově, který by nabídl mnohem více prostoru pro všechny členy rodiny. Vybrali si jednoduchý účelný bungalov z řady Kristýna od dodavatele Ekonomické stavby, který z hlediska velikosti i ceny přesně odpovídal jejich potřebám. Podělili se s námi o to, jak příběh jejich nového domova začal a šťastně skončil.

Co vás přivedlo k rozhodnutí postavit si vlastní rodinný dům?
Původně jsme bydleli ve městě, v malém třípokojovém bytě. Mít vlastní rodinný dům jsme chtěli hlavně kvůli možnosti být blízko k přírodě. Velký dvůr, altánek, příjemné posezení, relax, v létě bazén a zahrada, a také možnost bez problémů zaparkovat v jakékoliv hodině. Co se domu týče, chtěli jsme větší prostor a dispoziční uspořádání podle svých představ.
Proč jste se rozhodli pro stavbu domu na klíč?
Stavět svépomocí nás nelákalo, protože s tím nemáme zkušenosti. Proto pro nás byla ideálním řešením stavba na klíč.

Stanovili jste si dopředu podmínky, které vám vybraná stavební společnost musela splňovat?
Dlouho jsme hledali stavební společnost, která se věnuje stavbám „od A do Z“. To znamená stavbu na klíč a vyřízení veškerého papírování ohledně stavebního povolení.
Z jakého důvodu jste se rozhodli zadat stavbu firmě Ekonomické stavby?
Kontakt na firmu Ekonomické stavby jsme našli na internetu, kde jsme si požádali o zaslání katalogu domů. Po jeho prostudování nás zaujala nabídka rodinných domů, modelů financování, doba výstavby a možnost navrhnout si vlastní uspořádání domu. Věděli jsme, že je to společnost, kterou jsme hledali.
Kuchyň je otevřena do společné obývací části, ale má i vlastní okno. Linka ve tvaru písmene U nabízí praktický úložný prostor a velkorysou pracovní plochu

Podle čeho jste si vybrali typ domu?
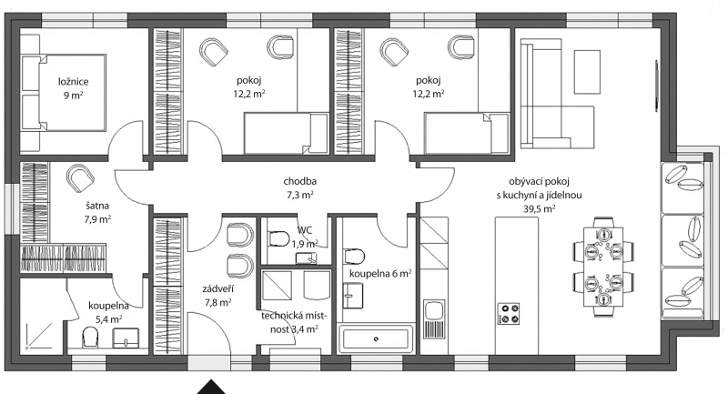
Na první osobní jednání v sídle společnosti jsme přišli s nakreslenou představou našeho vysněného domu. Naší představě se nejvíce přibližoval dům Kristýna 12.
Byli jste překvapení, že Ekonomické stavby nabízejí vyřízení stavebního povolení zadarmo?
Nechtěli jsme ztrácet čas ani trpělivost zdlouhavým vyřizováním po úřadech, a hlavně jsme vůbec neznali všechny postupy, proto jsme přivítali možnost nechat to na odbornících z Ekonomických staveb.
V interiéru převažují přírodní barvy a dekory. Majitelé domu je doplnili tapetami s dynamickými motivy.
Jak jste financovali stavbu domu?
Část stavby domu jsme financovali z vlastních zdrojů a využili jsme nabídku Ekonomický staveb, kde nám k vlastní hotovosti pomohli získat nejvýhodnější hypotéku na dofinancování stavby domu.
Jak dlouho trvala stavba domu?
Stavba domu začala koncem srpna, a jelikož byla zima ten rok tuhá, mráz dosahoval až −15 °C a napadalo velmi mnoho sněhu, tak se na dva a půl měsíce pozastavila. Kvalita stavby je pro nás před rychlostí stavby na prvém místě. Pokračovalo se tedy až po oteplení a stěhovali jsme se poslední červnový týden. I s touto přestávkou jsme si mohli za deset měsíců užívat pohodlí ve vlastním vysněném domě.

TECHNICKÉ ÚDAJE
Dům Kristýna 12
Dispozice: 4 + kk
Rozměry: 8,4 × 14,4 m
Zastavěná plocha: 121 m2
Užitná plocha: 98,8 m2
Cena v programu Zlaté ručičky: 2 900 000 Kč
Měsíční splátka v programu Zlaté ručičky: 14 025 Kč
Cena luxusní provedení: 4 350 000 Kč
Měsíční splátka luxusní provedení: 21 037 Kč
Dodavatel: Ekonomické stavby, www.ekonomicke-stavby.cz
www.ekonomicke-stavby.cz
Text a foto: Ekonomické stavby







-681b42bc34be4.jpg)

















Natavení asfaltových pásů v místě budoucího zdiva
Ukázka služby Pomoc se založením zdiva – srovnání zakládací malty maltovací latí do potřebné výšky po celé délce zdi
Ukázka služby Pomoc se založením zdiva – uložení první řady cihel do maltového lože, poklepání paličkou a kontrola rovinnosti horní ložné plochy
Soklovou cihlu Porotherm TBS Profi na první pohled poznáte podle hydrofobizovaného pásu, který zabraňuje nasákání vody

