Skip to content

Blog

Příběh rodiny Bauerových: Z velkoměsta do klidného prostředí

Patrik Bauer se se svou pětičlennou rodinou rozhodli opustit malý byt v rušném centru Prahy a přesunout se do klidné obce Borek ve Středočeském kraji. Vlastní dům nebyl původně jejich snem, spíše se jednalo o výsledek životního vývoje. Proč se rozhodli stavět na klíč a jak se jim bydlí?

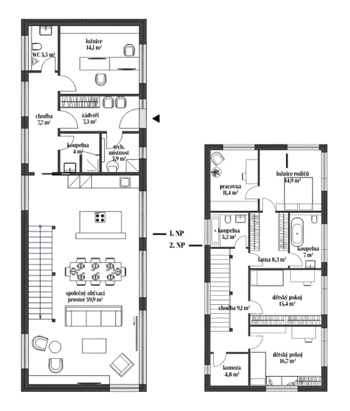
Dům Stela 20 tvoří dva trakty se sedlovými střechami. Hlavní průčelí s širokým HS portálem je orientováno do klidové části zahrady s terasou a bazénem

Rozhodnutí pro výstavbu vlastního domu přišlo v době, kdy již rodina vlastnila pozemek, což jim umožnilo přemýšlet o konkrétním projektu. Patrik nám rád vyprávěl, jak to dále probíhalo.

Proč jste se rozhodli nechat si vystavět dům na klíč? Budovat svépomocí vás nelákalo?

Naše volba stavby domu na klíč byla z velké části ovlivněna naším nabitým pracovním a osobním životem. Já a Lenka, oba máme plné ruce práce a najít čas na stavbu domu svépomocí by pro nás bylo nereálné. Stavba na klíč nám přišla jako ideální řešení, protože nám umožňuje delegovat veškerou práci na odborníky, zatímco my se můžeme soustředit na naše profesní povinnosti a rodinu. Tento způsob stavby nám také dává jistotu v dodržení termínů a cen, což odstraňuje typické starosti spojené se stavbou domu. Představa, že se můžeme jednoduše přestěhovat do dokončeného domova bez nutnosti zabývat se detaily stavby, byla pro nás velmi přitažlivá a usnadňuje nám to přechod do nového domova.

Pohrávali jste si s myšlenkou, zda zděný dům, nebo dřevostavbu?

Na počátku jsme váhali mezi zděným domem a dřevostavbou, obě možnosti měly svá pro a proti. Po pečlivém zvážení všech faktorů a komunikaci se společností Ekonomické stavby jsme se nakonec rozhodli pro zděný dům. Tento výběr byl zásadně ovlivněn kvalitou přístupu a otevřeností komunikace ze strany ES.

Podle jakých kritérií jste si stavební společnost vybírali?

Při výběru stavební společnosti jsme nejprve oslovili několik firem, abychom získali přehled o jejich nabídkách a přístupu. Rozhodující pro nás byla návštěva výstavy a vzorového domu, kde jsme získali přímou zkušenost s kvalitou a realizací. Nakonec jsme se rozhodli pro společnost Ekonomické stavby, jejíž prodejní proces a celkový přístup k zákazníkům vynikal nad konkurencí a přesně odpovídal našim očekáváním.

Jaké byly přípravné práce, průběh a závěr stavby?

Začali jsme stavět v době, kdy situaci částečně komplikovala pandemie covidu, což ovlivnilo jak přípravné práce, tak i dodávky materiálu. Narazili jsme také na problém se špatně nalitými základy, což vyžadovalo jejich přelití a způsobilo zpoždění v počáteční fázi stavby. Po vyřešení těchto komplikací však průběh stavby nabral správný směr a díky spolupráci s ES a jejich odborným zásahům byla stavba našeho domova úspěšně dokončena.

Mají členové rodiny nějaké místečko v novém domě, které si záhy zamilovali?

Každý člen naší rodiny si rychle našel svůj oblíbený koutek, který si zamiloval. Ať už je to útulný koutek v obývacím pokoji s výhledem do zahrady, kde rádi trávíme odpoledne čtením knih, nebo světlá pracovna s klidným prostředím pro naši soustředěnou práci. Tato místa nám poskytují pocit pohody a soukromí v rámci společného domova.

TECHNICKÉ ÚDAJE
Dům Stela 20
Zastavěná plocha:
6 + kk + G
Rozměry: 10,15 × 13 m
Zastavěná plocha: 122,7 m2
Užitná plocha: 194,9 m2
Cena v programu Zlaté ručičky: 4 600 000 Kč
Měsíční splátka v programu Zlaté ručičky: 22 246 Kč
Cena luxusní provedení: 6 750 000 Kč
Měsíční splátka luxusní provedení: 32 644 Kč
Dodavatel: Ekonomické stavby, www.ekonomicke-stavby.cz
Více o domě Stela 20

1. NP
2. NP

www.ekonomicke-stavby.cz
Text a foto: Ekonomické stavby

O kvalitních napojovacích lištách nebudete vědět ani po letech

Napojovací (začišťovací) lišty s tkaninou hrají ve stavebních konstrukcích dvojí roli. Kromě vytváření estetického přechodu mezi finální fasádou a okenními (dveřními) prvky je při montáži výplní stavebních otvorů zásadní jejich schopnost eliminovat dilatační pohyby mezi různými materiály, tedy okenním rámem a fasádou. „Existují tři třídy lišt – 1D, 2D a 3D a každá umí něco jiného. Vhodný typ lišty je potřeba volit podle velikosti okenních jednotek, tloušťky izolantu na budově, umístění okna v konstrukci i podle barvy omítky a rámů oken,zdůrazňuje nejdůležitější aspekty Tomáš Zadrobílek, technický poradce společnosti HPI-CZ, jednoho z největších dodavatelů stavebního příslušenství u nás.

O správně zvolených a kvalitních napojovacích lištách nebudete vědět ani po letech. V opačném případě můžete po roce dvou užívání novostavby řešit, proč se kolem okenních rámů na omítce objevují mokré mapy – zda špatně větráte, nebo jste zapomněli zavřít okna. Lišty a profily dodávané společností HPI-CZ vynikají svou pevností, odolností proti ohýbání a praskání, a také se snadno aplikují. Ačkoliv jsou začišťovací lišty v celkovém rozpočtu ETICS nepatrnou položkou, mají zásadní funkci.

Novinkami v sortimentu HPI-CZ jsou okenní začišťovací lišta 2D s „duo mechanismem“ Lišta s tkaninou 6mm DUO 2D, okenní začišťovací lišta se schopností trojrozměrné absorpce pohybu Lišta s tkaninou 10mm DUO 3D a okenní napojovací profil se samolepicí PE těsnicí páskou a flexibilní ochrannou lamelou Lišta s tkaninou Standard 3D s jazýčkem.

Lišta musí dlouhodobě a spolehlivě kompenzovat pohyb a napětí

Okenní napojovací lišty s tkaninou jsou důležitým prvkem montáže výplní stavebních otvorů (oken, dveří) budov zateplených kontaktním zateplovacím systémem (ETICS). Jejich správný výběr je zcela zásadní pro řešení tohoto detailu z hlediska funkčnosti a životnosti celého systému. Lišta musí být schopna dlouhodobě a spolehlivě kompenzovat pohyb a napětí mezi okenním rámem a zateplovacím systémem způsobený povětrnostními vlivy (slunce, vítr, déšť) a užíváním budovy (dynamické namáhání budovy, otřesy, otevírání – zavírání oken apod.). K tomuto účelu byly vyvinuty profily označené 2D nebo 3D se schopností dostatečného přenosu pohybu dvěma, respektive třemi směry.

„Fasáda stále pracuje, zejména v důsledku změny teplot, ale vliv mají i otřesy při užívání stavby, jako když zabouchnete dveře. Tlaky jsou rozdílné u malého okýnka toalety a velkého francouzského okna, kdy lišty musejí umět absorbovat daleko více pohybu, a to různými směry, jinak omítka po čase popraská a odtrhne se, nebo se lišta oddělí od okenního rámu. Tak vznikne spára, kterou déšť začne zatékat do konstrukce. Osazené okno je obvykle vypěněné PUR pěnou bez těsnicích pásek. PUR pěna je většinou oříznuta a tím pádem je hodně nasákavá, takže se za nějakou dobu na vnitřní špaletě začnou dělat mokré mapy a vy budete pátrat, odkud to je, zda špatně větráte… Viníkem bude voda, která skrz spáry pronikla konstrukcí do interiéru. Bavíme se o stavu po roce, dvou letech užívání stavby,“ varuje Tomáš Zadrobílek, technický poradce společnosti HPI-CZ, a dodává: „Pokud chcete zajistit větrotěsné, vodotěsné, dlouhodobě funkční napojení okna či dveří bez rizika prasklin a pozdější komplikované drahé údržby, investujte již na začátku do kvalitního, k tomu určenému výrobku. Tato relativně nízká investice do vhodného profilu zamezí separaci lišty od okenního rámu, zatečení do konstrukce a tím pádem trvalému znehodnocení zateplovacího systému.“

Nové lišty v nabídce HPI-CZ

 „Existují tři třídy začišťovacích lišt: 1D, 2D a 3D. Lišta 1D se umí stlačit a odtlačit do určitě míry, zpravidla do třetiny samolepicí pásky, takže pokud má páska 3 mm, tak její dilatace a roztažnost je řádově 1 mm, což není u všech oken dostačující. Navíc se pohybuje jen jedním směrem. Pokud se bavíme o 2D liště, tak ta funguje ve směru stlačit a odtlačit a ještě se umí pohybovat do stran. 3D lišta k tomu přidává ještě třetí směr –  nahoru dolů. Vždy je dobré volit lištu o řád lepší, aby absorbovala více pohybu,“ doporučuje Tomáš Zadrobílek, technický poradce společnosti HPI-CZ.

Novinkami v sortimentu HPI-CZ jsou:

Lišta s tkaninou 6mm DUO 2D je okenní začišťovací lišta 2D s „duo mechanismem“. Zajišťuje kvalitní, pružné a dlouhodobě funkční spojení mezi izolačním systémem a rámem okna nebo dveří. Díky schopnosti absorbovat tahy a podélné pohyby zabraňuje vzniku trhlin a netěsností, čímž přispívá k vyšší životnosti fasády a stabilitě zateplovacího systému.

  • Pevné a spolehlivé spojení – minimalizuje riziko narušení zateplovacího systému v kritických místech napojení.
  • Ochrana rámu při montáži – odlamovací lamela se samolepicí páskou umožňuje snadné připevnění ochranné fólie proti poškození.
  • Čisté zakončení omítky – vytváří téměř neviditelnou stínovou mezeru (shadow gap), která umožňuje estetické napojení i při různých barvách omítky nebo rámů.
  • Rozsahy pohybů testovány podle ift – SMĚRNICE MO-01/1

Materiál: UV stabilní PVC, tkanina – síťovina se skelným vláknem s protialkalickou úpravou. 

Lišta s tkaninou 10mm DUO 3D je okenní začišťovací lišta s trojdimenzionální vlastností. Zajišťuje kvalitní, pružné a dlouhodobě funkční spojení mezi izolačním systémem a rámem okna nebo dveří. Díky schopnosti absorbovat tahy a podélné pohyby zabraňuje vzniku trhlin a netěsností, čímž přispívá k vyšší životnosti fasády a stabilitě zateplovacího systému. Díky robustnější konstrukci se širší základnou než varianta 6mm DUO 2D, je použitelná pro všechny typy usazení otvorových výplní až do velikosti 10m2.

  • Pevné a spolehlivé spojení – minimalizuje riziko narušení zateplovacího systému v kritických místech napojení.
  • Ochrana rámu při montáži – odlamovací lamela se samolepicí páskou umožňuje snadné připevnění ochranné fólie proti poškození.
  • Čisté zakončení omítky – vytváří téměř neviditelnou stínovou mezeru (shadow gap), která umožňuje estetické napojení i při různých barvách omítky nebo rámů.
  • Rozsahy pohybů testovány podle ift – SMĚRNICE MO-01/1

Materiál: UV stabilní PVC, tkanina – síťovina se skelným vláknem s protialkalickou úpravou. 

Lišta s tkaninou Standard 3D s jazýčkem je okenní napojovací profil se samolepicí PE těsnicí páskou a flexibilní ochrannou lamelou. Zajišťuje dlouhodobě funkční a bezúdržbové spojení mezi okenním nebo dveřním rámem a zateplovacím systémem. Díky trojrozměrné absorpci pohybu minimalizuje vznik trhlin vlivem pohybových napětí a netěsností, čímž přispívá ke stabilitě fasády a celkové životnosti systému. Lišta je učena pro tloušťku izolace až do 300 mm.

  • Těsný spoj proti dešti – chrání fasádu před zatékáním a povětrnostními vlivy.
  • Snížený přenos hluku – zlepšuje akustický komfort interiéru.
  • Bez dodatečného čištění – čisté a estetické zakončení bez nutnosti dalších úprav.
  • Bezúdržbový spoj – dlouhodobá funkčnost bez potřeby další údržby.
  • Flexibilní ochranná lamela – umožňuje snadné upevnění ochranné fólie během montáže.

Materiál: UV stabilní PVC, TPE dilatační membrána, TPE jazýček, PE samolepicí páska, tkanina – síťovina se skelným vláknem s protialkalickou úpravou. 

Více na https://hpishop.cz

Stavte s jistotou: Využijte ověřené stavební firmy z programu e4 dům od wienerbergeru

Plánujete stavbu rodinného domu a hledáte spolehlivé řešení bez stresu a nečekaných komplikací? Program e4 dům od wienerbergeru nabízí ověřené stavební firmy, garantovanou dodávku materiálu a pomoc s dotacemi – to vše vám zajistí bezstarostný průběh stavby a dům připravený pro budoucnost.

Stavba na klíč od profesionálů

Program e4 dům sdružuje prověřené stavební firmy, které jsou pravidelně školeny a mají zkušenosti s výstavbou moderních cihlových domů. Firmy působí po celé České republice a garantují realizaci vašeho rodinného domu kompletně na klíč – od projektu až po předání hotového bydlení.

Garance materiálu a ceny

Jedním z hlavních benefitů programu je garance dodání stavebního materiálu přímo od výrobce – společnosti wienerberger. Navíc máte jistotu pevně stanovené ceny a jasně daných smluvních podmínek, takže vás během stavby nic nepřekvapí.

Pomoc s dotacemi i projektováním

Součástí programu je také pomoc s vyřízením dotačních programů, což vám může výrazně ušetřit náklady na stavbu. K dispozici jsou navíc certifikovaní projektanti, kteří vám pomohou připravit projekt domu přesně podle vašich představ – energeticky úsporný, funkční a připravený na moderní životní styl.

Moderní dům s nízkými provozními náklady

Cihlové domy postavené dle principů e4 jsou navrženy tak, aby splňovaly nároky současného i budoucího bydlení. Jsou energeticky efektivní, komfortní a jejich provozní náklady jsou velmi nízké. Zároveň dbáme na výběr zdravotně nezávadných materiálů s ohledem na životní prostředí. Díky kvalitnímu provedení a použitým materiálům má váš e4 dům dlouhou životnost a vysokou tržní hodnotu.

Chcete vědět víc? Vyplňte jednoduchý registrační formulář a získejte bezplatnou konzultaci s odborníkem. Ten vám nejen poradí, ale také vás spojí s ověřenou stavební firmou z vašeho regionu.

Perlata – povrch, který ožívá světlem

Hledáte povrch, který interiéru dodá eleganci, jemný lesk a zároveň neztratí na praktičnosti? Perlata je stěrka, která zaujme na první pohled a díky svému živému charakteru vás bude těšit každý den.

Perlata je dekorativní stěrka s jemným perleťovým efektem, který se mění v závislosti na úhlu dopadu světla. Právě tato schopnost reagovat na osvětlení přináší do interiéru hloubku, živost a vizuální proměnlivost. Povrch tak nikdy nepůsobí staticky a ve dne i večer vytváří jedinečnou atmosféru.

Díky široké škále 96 barevných odstínů se Perlata snadno přizpůsobí různým typům interiérů. Na výběr jsou jak tlumené tóny pro klidné prostory, tak syté barvy pro výraznější akcenty. Jemný odlesk materiálu působí elegantně a přitom nenásilně, což z něj činí vhodnou volbu pro obytné i komerční interiéry, kde je cílem zútulnění bez ztráty vizuální čistoty.

Perlata nejlépe vyniká v kombinaci s dobře zvoleným osvětlením, ideálně směrovým nebo bodovým, které podtrhne strukturu a proměnlivost povrchu. Perlata tak v interiéru nehraje jen dekorativní roli, ale skutečně podtrhuje atmosféru místnosti.

Chcete vidět, jak stěrka Perlata vypadá v prostoru a jak reaguje na světlo? Přijďte se podívat do showroomu firmy Němec s.r.o. v Praze nebo Brně, kde vám pomohou najít to nejlepší řešení pro váš interiér.

Více informací naleznete na www.nemec.eu | Foto: Kateřina Němcová

Jak vybrat správný vypínač

Klasické, bezdrátové, nebo chytré vypínače? Odborník radí, jak vybrat správný typ vypínače přesně podle vašich potřeb a jak jednoduše zapracovat chytré prvky do klasické elektroinstalace. Jednoduše, bez vyšších nákladů a hlavně ovladatelné jak standardně stiskem, tak i mobilem.

Odpovídá Ing. Tomáš Drahoňovský, Ph.D., expert na chytrá řešení v elektroinstalacích

Jaký je rozdíl mezi bezdrátovým vypínačem a chytrým vypínačem a kdy který použít?

Jsou to jediné vypínače, které nainstalujete bez stavebních úprav, a přitom jsou bezdrátové vypínače plnohodnotnou alternativou ke klasickým. Jak název napovídá, pro své fungování nepotřebují kabely.

Bezdrátový vypínač úžete nalepit kam potřebujete, včetně skleněné stěny ( vypínač future linear, ABB)

A jak jsou napájeny a na jakém principu fungují?

Buď je napájí baterie s vysokou životností, anebo jsou bezbateriové a jsou napájeny vlastním stisknutím tlačítka – mechanickou energií. Ano, tak jednoduché to je. Při novostavbě nebo rekonstrukci oceníte jejich hlavní výhodu – můžete je umístit, kamkoliv potřebujete, bez ohledu na původní rozvody. V novostavbě třeba do místa, kde je vedení kabelu náročné nebo to vůbec nejde (sklo) anebo kde nechcete vrtat do pohledového kamene, dřeva či obkladu. Při rekonstrukci a změně dispozičního řešení je nalepení vypínače levnější než drážkování, tahání kabelů… Sice je bezdrátový vypínač dražší, ale ušetří vám mnohdy nervy, úklid a čas. To samozřejmě platí jen pro dílčí instalaci. Nikoliv kompletní řešení bezdrátové domácnosti.

Bezdrátovým vypínačem můžete
• Spínat i více světel najednou.
• Spínat jedno svítidlo z více míst.
• Může posloužit jako bezdrátový schodišťák i jako „křížák“ a ovládat jedno světlo ze tří míst.
• Měnit barvu, teplotu a intenzitu osvětlení.
• Ovládat osvětlení i podle východu a západu slunce.

Jaké jsou druhy bezdrátových vypínačů?
• Radiofrekvenční (zkratka RF): jsou jednoduché, nepotřebují internet a jsou s baterií.
• ZigBee je spolehlivé bezbateriové řešení, kdy můžete ovládat i stmívat osvětlení, využívat nastavené světlené scény. Typickým zástupcem jsou vypínače z řady Friends of Hue určené k ovládání inteligentní žárovek Philips Hue.
• Bluetooth vypínače (Bluetooth Low Energy) pracující na protokolu Casambi vám umožní pomocí mobilní aplikace a Bluetooth ovládat svítidla různých výrobců.
Tyto vypínače jsou bezbateriové. Mají dvě klapky, kterými můžete:
• rozsvítit, zhasnout
• ovládat dvě světla nezávisle
• anebo jednou klapkou rozsvítit a druhou vyvolat nastavenou scénu (intenzitu, barevnost)
• měnit barvu a teplotu osvětlení, vytvářet světelné scény
• automaticky ovládat světla podle času či východu/západu slunce…

Bezdrátový vypínač Bluetooth Low Energy, design Zoni®, greige, ABB (nizke-napeti.cz.abb.com)

Jak vypínače Friends of Hue pracující na protokolu Zigbee, tak Bluetooth Low Energy pracující na protokolu Casambi jsou ovladatelné jak prostým stiskem, tak prostřednictvím mobilní aplikace. A tím pádem můžete rozsvítit/zhasnout svým telefonem.
Určitě se nemusíte bát, že by jejich vzhled byl jiný než vzhled standardního vypínače a zásuvky. Rozdíl poznáte pouze v tom, že bezdrátové vypínače nepřepínáte klasicky kolébkově, ale reagují na stisk v horní nebo dolní části anebo v případě dvojitých vypínačů může každá půlka ovládat různá světla nebo funkce (viz box „Bezdrátovým vypínačem můžete:“).

Kdy je vhodné a kdy výhodné pořídit si chytrý vypínač a proč se jich nebát?

Každý stavebník řeší rozpočet. A když na konci stavby řešíte koncové prvky, jako jsou vypínače, není důvod k panice. Chtěli jste chytrou domácnost, ale rozpočet se vám zkrátil? Nezoufejte. Chytré vypínače jsou chytré i v tom, že na vás ‚počkají‘ a nepotřebují ani speciální kabeláž. To je vysloveně mýtus. Jen se domluvte doma a následně s elektrikářem, co budete chtít v budoucnu chytře ovládat a v které místnosti.

Chytrý vypínač ABB flexTronics®, design Zoni®, černá matná. Jeden chytrý vypínač vám stačí k tomu, abyste mohli z jedno místa ovládat světlo, několik světel nebo světla i jakékoliv žaluzie. Ručně i mobilem

Trocha teorie

Každý vypínač má pod svým ovládacím plastovým designovým krytem strojek, který je ve zdi v instalační krabici. A právě tyto strojky dělají vypínač chytrým anebo obyčejným (například ABB flexTronics®). Takže si můžete buď pořídit v rámci úspor jen částečné řešení, tzn., že chytrý vypínač/ovládač si dáte například jen do obývacího pokoje a ložnice, anebo dům „pochytříte“ dodatečně. Proto jsou nejmodernější chytré vypínače vhodné pro novostavby i rekonstrukce. Elektrikář buď vymění obyčejné vypínače za ty chytré, anebo obyčejné „pochytří“ dodatečnou montáží chytrého modulu (přijímače) pod vypínač. Díky tomu pak budete moci ovládat osvětlení a žaluzie:
• z více míst v místnosti,
• v různých místnostech najednou z jednoho místa,
• instalací automatického spínače spínat osvětlení pohybem,
• používat mobilní telefon k ovládání.

Při výběru vypínačů pro váš domov zvažte nejen současné potřeby, ale i budoucí možnosti rozšíření. Dobrou zprávou je, že i klasické řešení lze postupně vylepšovat chytrými prvky bez nutnosti rozsáhlých stavebních úprav.

Rozdíl mezi bezdrátovým vypínačem a chytrým vypínačem
• Oba umějí ovládání mobilem, ale chytré vypínače obslouží i více místností najednou.
• Bezdrátové vypínače jsou vhodné spíše pro jednotlivé dílčí aplikace a nepropojíte je mezi sebou.
• Bezdrátové vypínače jsou vhodné pro dílčí rekonstrukce anebo při změně dispozice místnosti.
• Chytrý vypínač umí například levou půlkou ovládat osvětlení a pravou žaluzie.
• Chytré vypínače se mezi sebou bezdrátově propojí, a tím můžete z jednoho místa ovládat i více místností (např. stáhnout/vytáhnout žaluzie v celém domě).

nizke-napeti.cz.abb.com
 

Vlastní dům je vlastní dům

Manželé Martina a Lukáš se po návratu ze zahraničí rozhodli zůstat na Slovensku, založit si rodinu a postavit si dům. Jak se jim to podařilo?

Manželé Martina i Lukáš od mala vyrůstali na venkově. Byli zvyklí na život v rodinném domě se zahradou. Část svého života strávili v zahraničí, a když se vrátili zpět na Slovensko, jejich plán byl jasný – usadit se, založit rodinu a postavit si vlastní dům. O bydlení v bytě ani nepřemýšleli, proto si rodinný dům pronajali také během výstavby a přemýšleli o možnostech a postupech výstavby toho svého vysněného. Měli jasnou představu, jak by jejich nový domov měl vypadat. Zajímalo nás:

Proč jste se rozhodli stavět se stavební firmou?

Se stavbou jsme neměli žádné zkušenosti. Nechat si postavit dům od stavební firmy bylo pro nás dobrým rozhodnutím a určitě bychom tak udělali i příště. V průběhu výstavby jsme se mohli plně věnovat své práci a dětem, což pro nás bylo důležité.

Podle jakých kritérií jste si vybírali stavební firmu?

Záleželo nám hlavně na dodržení pevné ceny stavby, na možnostech financování a spolehlivosti firmy. Společnost Ekonomické stavby nabízela navíc také různé záruky a služby zdarma. Jejich reference nás přesvědčily a spolupráce s nimi byla opravdu skvělá.

Vybrali jste si dům z katalogu, nebo jste měli vlastní projekt?

To byl také další z důvodů, proč jsme se rozhodli pro tuto firmu. V jejich katalogu jsme našli dům Lenka, který byl přesně takový, jak jsme si ho vysnili. Projekt jsme si jen upravili, aby splňoval požadavky pro život čtyřčlenné rodiny. Projektant nám ochotně vyhověl.

Do předsíně vyrobil truhlář na míru praktickou úložnou sestavu s nikou na sezení a odkládání věc
Koupelna v podkroví je vybavena masážní vanou a příjemně osvětlena velkým střešním oknem

Jak probíhalo první setkání u Ekonomických staveb?

Jejich nabídku jsme si pečlivě prohlédli, takže jsme přesně věděli, co chceme. Měli jsme vybraný finanční program „Mladá rodina“, a jak jsme již zmínili, i vysněný dům. Na setkání jsme si společně dohodli podmínky financování a naplánovali postup výstavby.

Byli jste spokojeni s průběhem stavby domu a prací tohoto dodavatele?

Stavbu zbrzdilo vyřízení hypotečního úvěru. Veškerou administrativu za nás vyřešily Ekonomické stavby, což bylo velmi příjemné. Komunikace s nimi byla vždy velmi přátelská a všichni byli vždy ochotní. Nechali jsme si postavit dům „na klíč“ a mezitím jsme se mohli věnovat své práci a rodině.

Do interiéru domu majitelé zvolili tlumené přírodní barvy a materiály. Společný obývací prostor je francouzským oknem propojen s komfortním venkovním sezením na kryté terase

Proč jste se rozhodli pro stavbu „na klíč“?

Se stavbou jsme neměli žádné zkušenosti a byli jsme v tomto čase dost pracovně vytížení. Naše děti byly ještě malé a my jsme chtěli plnohodnotně trávit svůj čas s nimi. Nechtěli jsme se zabývat stavbou na úkor rodiny, tato možnost postavit dům „na klíč“ nám vyhovovala. Těšili jsme se na to, jak si dům zařídíme podle svých představ.

Bydlíte tu už více jak čtyři roky. Jak jste se svým novým domovem spokojení?

Bydlí se nám skvěle. Nastal čas, kdy už máme v domě a jeho okolí skoro vše dokončené a teď už si užíváme dům se všemi jeho výhodami. Žije se nám tu dobře. Vlastní dům je vlastní dům a svého rozhodnutí postavit ho nelitujeme.

TECHNICKÉ ÚDAJE
Dům Lenka 25
Dispozice: 4 + kk + garáž
Rozměry: 13,7 × 6,6 m
Zastavěná plocha: 84,8 m2
Užitná plocha: 123,3 m2
Cena v programu Zlaté ručičky: 3 600 000 Kč
Měsíční splátka v programu Zlaté ručičky: 17 410 Kč
Cena luxusní provedení: 5 150 000 Kč
Měsíční splátka luxusní provedení: 24 906 Kč
Dodavatel: Ekonomické stavby, www.ekonomicke-stavby.cz
Více o domě Lenka

www.ekonomicke-stavby.cz
Text a foto: Ekonomické stavby

Potřebujete vypínač v místě, kam kabely nevedou? Vyřešte to chytře!

Vypínač přesně tam, kde ho potřebujete – bez vrtání, sekání a tahání kabelů. Bezdrátový, bezbateriový a bezúdržbový chytrý vypínač Smart Switch umístíte kamkoliv chcete. Bez stresu a „za hubičku“, protože cena dobré práce je dnes k nezaplacení. 

Radí Ing. Jakub Tuček, specialista na chytrá řešení v elektroinstalacích, ABB, s. r. o.

Smart Switch jsou nejmodernější bezdrátové vypínače, s kterými hravě vyřešíte mnohá úskalí, která řešení elektroinstalace přináší, a to jak při realizaci novostavby, tak při rekonstrukci anebo modernizaci domu a bytu.

Kdy vám Smart Switch pomůže? Podívejme se na pár typických příkladů

• Realizujete novostavbu, kde jsou použity drahé obklady stěn, například ze dřeva, přírodního kamene nebo dlažba atp., a nechcete do podkladu vrtat. 
• Potřebujete vypínač umístit tam, kam drátový umístit nelze. Typicky sklo.
Zjistili jste, po nastěhování, že by bylo praktické mít vypínač osvětlení ještě na jiném místě? 
• Nevíte ještě přesně, kde v novém domě budete chtít vypínač – třeba kvůli nejasnostem ohledně nábytku nebo změnám v dispozicích.
• Chcete mít pro svůj maximální komfort vypínač nalepený na nočním stolku, v dětském pokoji anebo u seniorů k pelesti postele.
• Postavili jste novou sádrokartonovou příčku a nechcete/nemůžete tahat kabely. 
• Jste limitováni rozpočtem a přesto chcete mít elektroinstalaci připravenu na chytrou domácnost a ovládat světla a žaluzie v budoucnu i centrálně nebo automaticky. 
• … nebo jen chcete ovládání osvětlení/žaluzií mobilem. 

Určitě najdete ještě mnoho dalších způsobů, jak chytrý vypínač Smart Switch využijete ve svém domě nebo bytě. Když na to přijde, tak v rámci místnosti můžete vypínač klidně i přenášet. Ale proč, když už můžete osvětlení nebo žaluzie ovládat i mobilem. 

Nalepte vypínač, kam potřebujete, ovládejte světla i mobilem, vytvářejte světelné scény

Jak Smart Switch funguje a co potřebujete pro instalaci?
Příklad 1
Nalepíte si Smart Switch přesně tam, kam potřebujete. Aktor (akční člen) vám elektrikář připojí ke světlu. V mobilní aplikaci je spárujete.

Příklad 2 
Na místě, kde máte nyní obyčejný vypínač (řazení 1/0) vám elektrikář připojí k přístroji vypínače tzv. aktor (akční člen, umisťuje se do instalační krabice pod vypínač). Na vybrané místo si nalepíte bezdrátový bezbateriový Smart Switch. V mobilní aplikaci si propojíte aktor a bezdrátový vypínač a je hotovo. 

Co dalšího se Smart Switchem získáte?

• Vypínač bude přesně tam, kde ho chcete mít. Čistě a komfortně.
• Ovládání osvětlení/žaluzií jak mobilem, tak standardně vypínačem 
• Spínání i více světel najednou z jednoho místa
• U stmívačů můžete navíc:
∙ snížit / zvýšit jas
∙ nastavit si počáteční jas pro rozsvícení a uložit jej do paměti
∙ ovládat osvětlení i podle východu a západu slunce (tzv. „Astro funkce“)
• Možnost nastavit na vypínači scénu, tj. například dvojitým stiskem tlačítka vypnete všechny světla v místnosti a stáhnete žaluzie
• Schopnost bezdrátově propojit až 32 přístrojů v domě a nepotřebujete k tomu nic jiného 
• Ovládání pro jedno zařízení (např. světlo), nebo pro celou místnost až po celou domácnost a bezdrátově! 
• Perfektní přípravu elektroinstalace na kompletní bezdrátové řešení chytré domácnosti jednoduchým propojením do jednoho místa pomocí videotelefonu ABB OneTouch 7“, který když připojíte na lokální síti, můžete ovládat dům odkudkoliv na světě!  A videotelefon? Ten už je v domech většinou standardem. Tak jednoduché to je.

Vypínače Smart Switch se vzhledem neliší od standardních vypínačů ABB v šesti designových řadách (nizke-napeti.cz.abb.com)

Vyberte si svůj oblíbený design

Shodný vzhled se standardními vypínači a zásuvkami ABB v oblíbených designových řadách Levit®, Levit® M, Zoni®, future® linear, Busch-axcent®, solo® a Tango® máte zaručený. 

A pokud byste chtěli Smart Switch udělat i z vypínače jiného výrobce, i to je možné. 

Šťastné rozhodnutí

Rodina Benešova bydlela v bytě na rušné ulici. Hned, jak jim to jejich finanční situace dovolila, se rozhodli koupit stavební pozemek a postavit si vlastní rodinný dům v klidné části města.

Dům Lenka nabízel vše, co si stavebníci přáli: prostor pro čtyřčlennou rodinu, obývák propojený se zahradou i garáž. Přistavěli krytou terasu a nic jim nechybí

Manželé Benešovi dlouho toužili po vlastním domě. Pár let si však na něj museli počkat. Spořili si peníze nejdříve na koupi pozemku, a když našli ten správný, rozhodli se prodat svůj třípokojový byt a začali stavět svůj vysněný dům. Do karet jim hrála také výhodná nabídka úrokové sazby hypotéky.

Prakticky řešená kuchyň má velkou pracovní plochou s přímým osvětlením. Hned vedle je spíž

Materiál a dodavatel – dvě zásadní volby

Od samého začátku byli rozhodnuti pro spolupráci se stavební firmou, protože si byli vědomi toho, že jim to proces výstavby domu v mnohém ulehčí. Při prvním výběru vhodné stavební společnosti získali bohužel negativní zkušenost s neprofesionálním přístupem firmy. Proto si podruhé dali větší pozor a stavební společnost si vybrali především podle referencí spokojených klientů, spolehlivosti a bohatých zkušeností firmy. Volba padla na společnost Ekonomické stavby.

Věděli, že chtějí zděný dům. Neměli však přesnou představu o tom, jak by měl jejich dům vypadat „Proto jsme si domluvili osobní jednání s manažerem projektu panem Hlaváčem. Ochotně s námi prokonzultoval všechny naše požadavky, odpověděl na všechny naše dotazy a ukázal nám, jak jednoduchá může být cesta za splněním našeho snu. Vybrali jsme si tradiční patrový dům se sedlovou střechou. Dispozice domu byla 4 + 1 s garáží,“ vyprávějí manželé Benešovi.

Do interiéru majitelé zvolili barvy a dekory v přírodních tónech. Rohové okno poskytuje hodně světla a hezký výhled z jídelny i z obýváku do zahrady

Profesionální pomoc se vyplatila

Ve spolupráci s projektantem upřesnili detaily jako drobné změny v dispozici, typy oken a dveří. Jelikož měli úřady na dosah i dobré známosti, stavební povolení si vyřídili sami. Povolení získali v srpnu a za měsíc již začala stavba vysněného domu. Do prvních mrazů byla postavena hrubá stavba prvního patra. Přes zimní období se stavební práce pozastavily. S oteplením se vrátil i stavební ruch a koncem září se mladá rodinka stěhovala do svého nového domu. Během výstavby bylo však třeba řešit mnoho důležitých otázek ohledně použití vhodných materiálů, úprav dřevěného podhledu, typu obvodového zdiva a tak dále. Klienti si po přátelských a profesionálních radách manažera stavby, který jim byl po celý čas k dispozici a byl pro stavbu domu velkým přínosem, zvolili zlatou střední cestu.

Na malý byt rychle zapomněli

Dnes jsou šťastní manželé a jejich dvě děti přestěhovaní a myšlenka na to, že by se vrátili do jejich původního bytu, je po pár dnech v novém domově opustila. Získali mnoho nových přátel, skvělých sousedů, krásného psíka a zelenou zahradu. „Já mám nejraději garáž a manželka zase svoji ranní kávu na terase. Děti zbožňují své pokoje a já si užívám relax i při kosení trávy,“ říká pan Beneš.
Měli velké štěstí, že svůj dům stihli postavit ještě před pandemií a jejich zahrada jim tak mohla nabídnout mnohem více svobody, než by to dokázal jejich byt.

TECHNICKÉ ÚDAJE 
Dům Lenka
Dispozice: 4 + 1 + garáž
Rozměry: 11,8 × 9 m
Zastavěná plocha: 93,2 m2
Užitná plocha: 129 m2
Cena v programu Zlaté ručičky: 3 500 000 Kč
Měsíční splátka v programu Zlaté ručičky: 16 927 Kč
Cena luxusní provedení: 5 050 000 Kč
Měsíční splátka luxusní provedení: 24 423 Kč
Dodavatel: Ekonomické stavby, www.ekonomicke-stavby.cz

1. NP
2.NP

www.ekonomicke-stavby.cz
Text a foto: Ekonomické stavby

Když je obal součástí stavebního materiálu

Šetrnost k životnímu prostředí dnes prostupuje téměř každým oborem a logicky se nevyhýbá ani stavebnictví, potažmo výrobcům stavebních materiálů. Dobrým příkladem je společnost Baumit, která využívá inovativní technologii samorozpustných obalů. Poznáte ji mimo jiné podle označení ALL IN na výrobcích.

Suchá směs Baumit ALL IN Beton B20 je ideální pro betonářské práce a opravy v domě i na zahradě bez zvýšených nároků na statické požadavky. Hodí se zejména pro drobné základy, schodišťové stupně, betonové zdi, překlady, stropní desky, podklady pro dlažbu apod. Beton je vhodné po uložení na určené místo zhutnit a urovnat nebo uhladit.

Příslib šetrnosti k přírodě má u renomovaného výrobce stavebních materiálů Baumit jasný rámec – před několika lety přijatou vizi GO2morrow, která se zaměřuje především na udržitelnost a snížení emisí skleníkových plynů o 20 % do roku 2030. Cest k dosažení tohoto cíle je však několik. Na svém domácím, rakouském trhu již dnes Baumit nabízí například betonovou směs s recyklovaným kamenivem nebo ekologickou cementovou směs, která při zachování stejných vlastností jako běžný cement dosahuje úspory 25 % emisí CO₂. Ke snížení emisí významně napomáhají – a i nadále budou – materiály pro zateplovací systémy ETICS. Dalším způsobem, jak přispět k celkové udržitelnosti, jsou inovativní řešení obalů, chcete-li, pytlů u vybraných výrobků označených Baumit ALL IN.

Zdicí malta Baumit ALL IN MM 50 se nanáší celoplošně. Tloušťku maltového lože lze provést v rozsahu 8–15 mm, pro dosažení výškového modulu cihel 250 mm se doporučuje tloušťka lože 12 mm (výška cihly 238 mm a maltové lože 12 mm).

Přibližně před třemi lety uvedl Baumit na český trh první takto označený výrobek – suchou betonovou směs Baumit ALL IN Beton B20. Co se týče vlastností, oproti dříve nabízené směsi betonu nedošlo k výrazným změnám, až na jednu. Betonová směs je dodávána ve speciálním pytli (v tomto případě 30kg balení), který se po vložení do míchačky a přidání vody v odpovídajícím poměru samovolně rozpustí a současně obohatí beton o přírodní celulózová vlákna. Tím dochází ke zlepšení vlastností směsi zejména v oblasti pevnosti v tahu za ohybu.

Samorozpustný obal je vnímán jako přidaná hodnota výrobku – z pohledu ekologie, lepší zpracovatelnosti i ochrany zdraví pracovníků. Na stavbě nevzniká nepořádek, není třeba řešit třídění a odvoz obalů. Pracovník pytel neotvírá, pouze jej vloží do míchačky. Prašnost při přípravě betonové směsi se tak snižuje až o 40 %, což zároveň omezuje riziko zdravotních potíží způsobených vdechováním prachových částic.

Tento beton třídy C 16/20 je vhodný pro všechny běžné betonářské práce v domě i na zahradě, například jako podklad pod dlažbu, pro základy, schody, překlady, stropy či opěrné zdi.

Zdicí malta Baumit ALL IN MM 50 se nanáší celoplošně. Tloušťku maltového lože lze provést v rozsahu 8–15 mm, pro dosažení výškového modulu cihel 250 mm se doporučuje tloušťka lože 12 mm (výška cihly 238 mm a maltové lože 12 mm).

Dalším výrobkem, u něhož Baumit před rokem uplatnil technologii samorozpustných pytlů, je vápenocementová zdicí malta Baumit ALL IN MM 50 s pevností 5 MPa, vhodná pro běžné zdění, zejména u nízkopodlažních domů. Tato suchá směs se dodává v 25kg balení, opět v samorozpustném pytli, tedy se stejnými výhodami, jako je obohacení směsi celulózovými vlákny, snadné vkládání do míchačky a absence nutnosti recyklace obalu.

Společnost Baumit tak na českém trhu stále více prosazuje stavební materiály vyráběné s ohledem na šetrnost k přírodě.

Se střechou z pálených tašek se nemusíte bát extrémního počasí

Povětrnostní podmínky se mění a domy na to musí být připravené. Místo předvídatelných sezón přicházejí náhlé bouře, silný vítr nebo krupobití, které může během několika minut způsobit škody za desítky tisíc korun. Právě střecha v těchto situacích často rozhoduje o tom, zda dům odolá, nebo podlehne. Proto má smysl vybírat krytinu, která obstojí i tam, kde jiná řešení selhávají.

V posledních letech vidíme nárůst dotazů na odolnost střešní krytiny vůči extrémnímu větru, krupobití nebo intenzivním dešťům. Je vidět, že lidé vnímají změnu klimatu a hledají řešení, které obstojí i v extrémních podmínkách. Právě proto ve wienerbergeru klademe důraz na testování a dlouhodobou výdrž našich tašek,“ říká Vít Jirkovský, ředitel projektového businessu Tondach.

Právě odolnost vůči extrémnímu počasí byla důvodem, proč se Tondach rozhodl prověřit své tašky i nad rámec běžných norem. Ve spolupráci s rakouskou laboratoří IBS v Linci byly vybrané typy tašek vystaveny náročnému testování, které simulovalo reálný nápor krup různé velikosti. Pálené tašky Contiton 12 a Planoton 11 během zkoušek odolaly i ledovým projektilům o průměru 4 až 5 centimetrů, které na ně dopadaly rychlostí přes 100 kilometrů za hodinu. V České republice se průměrná velikost krup pohybuje okolo dvou centimetrů. Testovali jsme ale i výrazně větší zátěž, abychom měli jistotu, že krytina obstojí i v méně obvyklých, ale stále častějších situacích,“ dodává Rudolf Prus, produktový technik značky Tondach.

Střešní tašky Tondach čelily náporu krup různých velikostí, které na ně mířily kolmo, a testem pevnosti tak prošly. Zkoušky se navíc vyhodnocují podle nejnepříznivějšího souběhu okolností, ve skutečnosti ale krupobití nepůsobí přesně kolmo, kroupy dopadají na líc tašky pod úhlem v závislosti na sklonu střechy a síle větru. Proto v reálných podmínkách vydrží střešní krytina mnohem víc, než prokázala samotná zkouška.

Proměnlivé počasí je dnes realitou, se kterou musí počítat každý, kdo staví nebo rekonstruuje. Odolná střecha není jen doplňkem, ale zásadním prvkem celkové ochrany domu – v létě čelí přímému náporu bouřek a krup, v zimě zase brání promrzání, zatékání a poškození tepelné izolace. Pokud krytina selže, často nejde jen o výměnu několika tašek, ale o zásah do celé skladby střešního pláště. Střešní tašky tak představují první linii obrany. Zatímco fasáda nebo okna mohou být částečně chráněny tvarem budovy, střecha musí obstát i při přímém náporu. Správná volba krytiny proto rozhoduje o tom, zda dům vydrží bez zásahů desítky let, nebo bude po každé sezoně potřebovat opravy. Pálené tašky Tondach v tomto ohledu nabízejí jistotu, která se opírá o reálné výsledky testování i dlouholeté zkušenosti.

Dnešní stavebník už ví, že počasí se mění. A stejně jako se mění požadavky na zateplení nebo statiku, mění se i nároky na střechu. Proto navrhujeme tašky tak, aby chránily domy i v podmínkách, které dnes ještě nemusí být běžné, ale zítra už mohou být samozřejmostí,“ uzavírá Prus.

Patří také dlouhodobě k nejspolehlivějším typům střešní krytiny. Vyznačují se vysokou mechanickou odolností, minimální nasákavostí a tvarovou stálostí i po desítkách let používání. Oproti některým lehkým krytinám lépe odolávají krupobití a díky své hmotnosti také lépe čelí silnému větru. Velkou výhodou je také dlouhá životnost. Při správném provedení a běžné údržbě může střecha z pálených tašek vydržet bez zásadních oprav mnoho desítek let.

PARTNEŘI WEBU

MDKK MUJDUM STAVBAWEB IMATERIALY RODINNYDOM BMONOE
Copyright © BUSINESS MEDIA ONE, s. r. o. 2006–2026